欢迎光临聚设汇,装修找设计就上聚设汇!
   咨询电话:15602987227
登录    注册
聚设汇
首页 > 家装 > 春泥 | 亚夏风和苑

春泥 | 亚夏风和苑

其实对于设计师,一个项目完美落地后的收获远不只是那几张漂亮的照片。更多的与业主互相学习中得来人生成长,这种成长是能够丰富生命的。

能够让你生命脚步踏出更多的莲花,面对非议与嘲讽,能够内心淡然,一笑而过。此种财富在当今社会弥足珍贵。

DESIGN PLAN

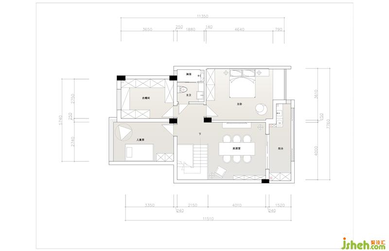
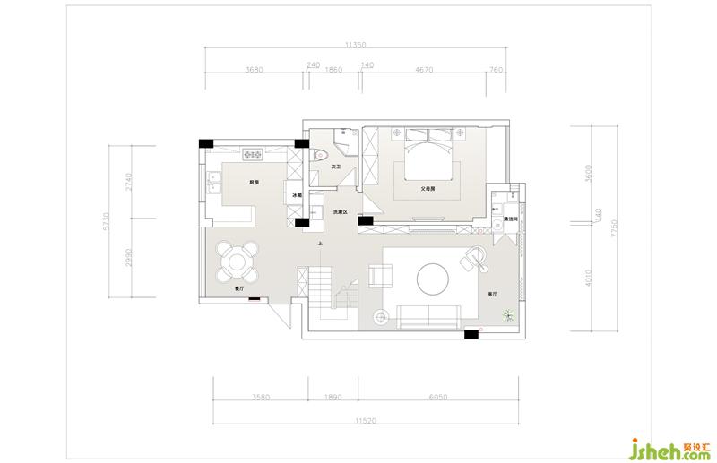
平面图

△ 一层平面图

△ 二层平面图

更多南京装修设计请关注聚设汇装修平台:

JFYD贾峰云设计 设计总监

设计收费:500 元/平             

擅长类型: 住宅、餐厅

在线咨询

扫描二维码关注我们的微信

深圳市聚设汇文化传媒有限公司
主编热线:15602987227
总部:深圳市罗湖区梨园路128号宝能汽车大楼416单元
佛山、东莞、成都、重庆、福州、厦门、南昌、武汉、
杭州、苏州、温州、郑州、长春、沈阳、贵阳、柳州、
哈尔滨、九江等城市设立办事处
© 2017-2021 Jsheh.com 版权所有 粤ICP备17079093号
展开
回到顶部