


△ 一步一景

△ 主卧室
人生百年,所历之时,日居其半,夜居其半。大白话也就是说,人生一世,白天工作吃饭,耗去一半时光,而另一半时光,别墅装饰则是在夜间睡觉中度过。白天我们所处,或职场或厅堂,或厨房或健身房,而夜间所处,唯卧室睡房。卧室的床,是我们相共半生的地方,所以尤其需要惬意舒适、温暖温馨。一抬眼,却是纯净怡人的蓝天、白云,或者海水、浪花……身心轻盈,安然恬淡。
而墙上的一盏长条橘色暗淡的灯,充满古韵柔情,在夜半梦回或清晨,半眠半醒之间睁开眼,迷迷糊糊不知的茫然中,一抬头,便有安全、踏实与安心。

△ 书房
中式为主打风格的精舍之房,除窗明几净之外,尚有图书翰墨、文房四宝种种。一桌一椅一壶茶,别墅装饰是士大夫文人墨客“偷得浮生半日闲”、“无事此静坐”的最清静的向往所在。中式主体下,端坐的桌椅,简单宽大舒适,非止容得下一臀,就像一个大度宰相,包容得下周身,得以惬意自由地腾挪靠倚,整个身心得以自由放松。
而所需文房四宝、宣纸狼毫,藏之柜格,终究不如就在眼前,随取随得,用之如左右手一样便捷。正所谓一事有一事之需,一物备一物之用。
书房的墙壁,最宜潇洒,最忌堆砌繁复。就像画家作画不懂留白,让人一眼看透假装的伪态。天下万物,以少为贵。几案对面,一幅字画——湖光山色,蓝天白云,寺观浮屠,蒹葭鸥鸟……正应了房舍“取景在借”的技巧。恍惚中似见一扇面山对海的窗,别开生面。即因地制宜、不拘成见之法。

△ 楼梯过道
△ 客房
△ 负一楼平面
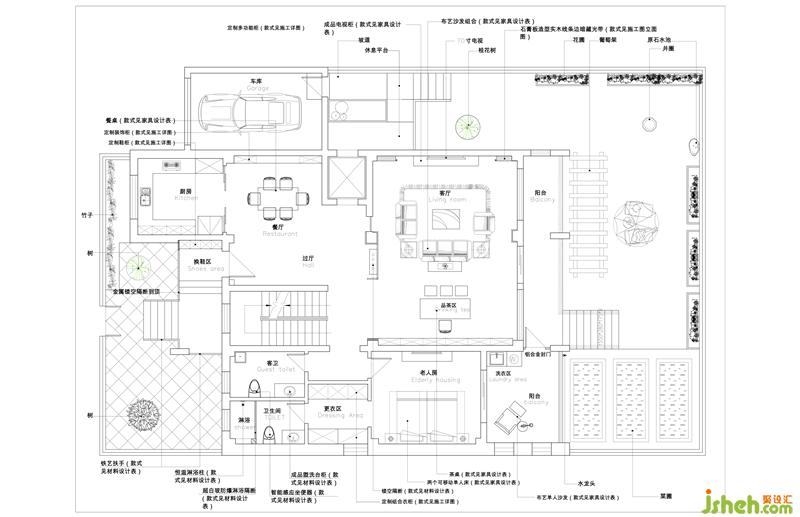
△ 一楼平面
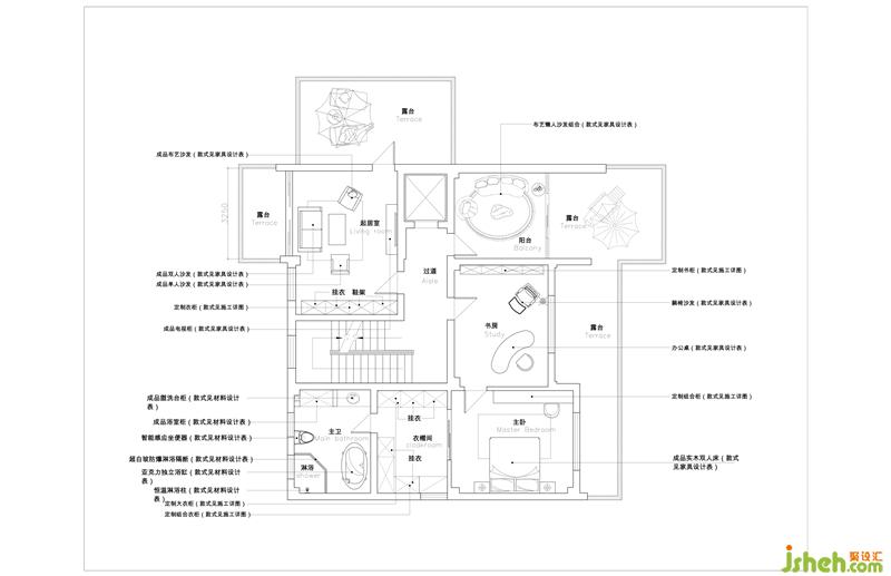
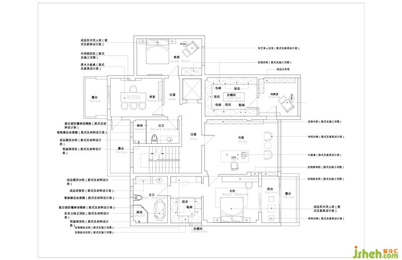
△二楼平面
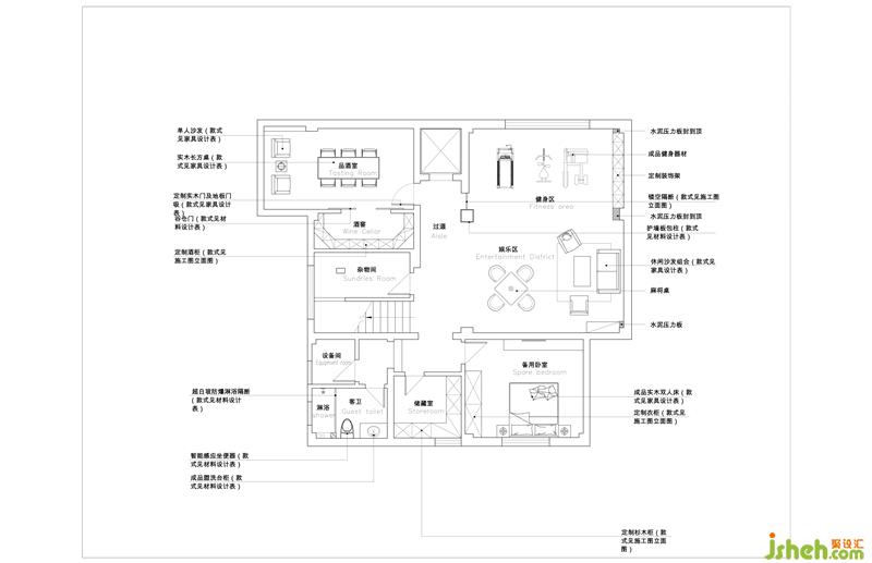
△三楼平面
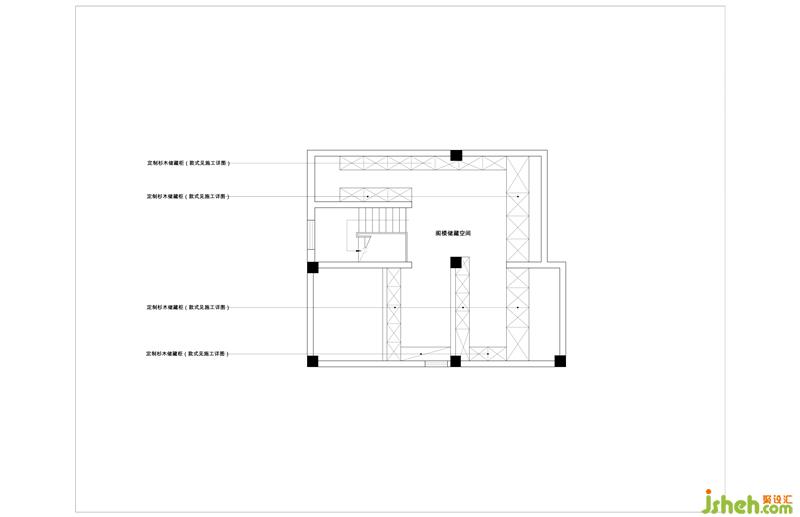
△阁楼平面
更多别墅装饰请关注聚设汇装修平台: