二楼起居室清新雅致分享学习
交流欢乐
▼
静思室冷静放松可阅读可静默尽享独处时光
▼
卧室格调优雅米灰床具配以红色麻布窗帘为安静的休息空间增添些许私密感
深色地板沉淀了色彩
▼
别墅装饰
业主 是位活泼开朗的女孩子,喜欢户外活动。
不过也有安静的一面,对家庭环境有自己独到的见解。
从设计之初就极度配合设计师的思路,
不过这都是基于前期的深入良好沟通,
让甲方乙方寻找到统一的价值观与美学观。
做别墅设计这么多年,深感设计前沟通的必要性。
“认真”是好作品诞生的必要条件。设计公司再大的规模,再好的品牌,
再多的奖项都比不过主设计师对设计职业全情投入的精神
与站在业主立场不断钻研的工作思路。
与业主价值观的匹配能够让设计师更加容易进入角色,
在空间尚未施工的时候即可以在脑海中构建出完整的竣工场景。
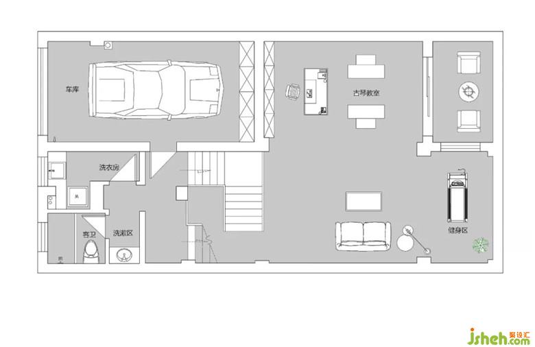
负一楼平面 ▼
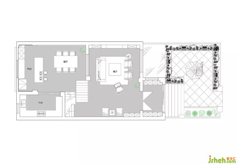
一楼平面▼
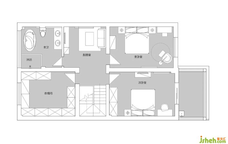
二楼平面 ▼

