·项目标题 :60平方的小旧暗房子,也拥有了灿烂的阳光
·项目地址 :荷光路
·项目面积:62平方米
·项目风格:ins北欧风格
·设计机构:H&Y联创设计机构
·预 算 :30万
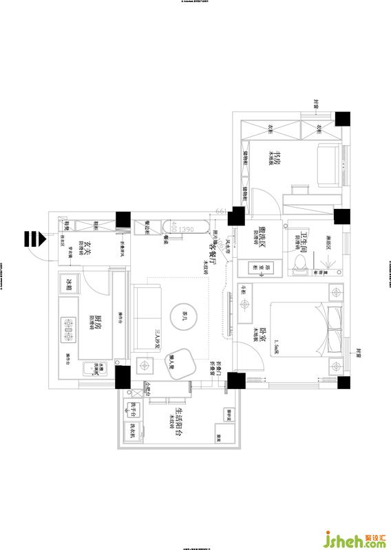
房子是老旧房,楼梯房二楼,整体采光性不好,且利用率不高。因此室内设计师从整体格局来进行一个改造。
重点改造:室内设计师把洗手台从卫生间移到外面,变成一个独立的盥洗区,改变主卧门;厨房向玄关扩大了,墙全部打掉,和客厅链接的墙上做百叶窗;单独设计了玄关,可开放可封闭,很好地引入了厨房窗的光线。进门后就是客厅的采光问题,与阳台之间做了白色百叶门与可折叠百叶窗作为空间的划分。阳台是整个空间最好的采光点了。原有阳台窗是打掉矮墙做成了吧台,折叠窗可开可关,真的很实用美观。这个吧台是这对年轻夫妻最喜欢的空间了。室内设计师在色彩上运用男业主喜欢的少女粉和天蓝色来搭配,很符合这一对文艺男女青年的年轻夫妻的气质。
平面方案图
客厅
客厅靠阳台的这边是采光最好的空间,设计师用可调光的百叶门和百叶窗作为遮挡。




餐厅
空间有限,没有独立的餐厅位置,因此使用折叠式的多变餐桌,用餐时是餐桌,休闲时又是小餐吧区,多变还能节省空间。


厨房
原来的厨房空间很小,对于爱下厨房的小夫妻来说,操作空间完全不够。经过改造后,整个空间往门厅移动,形成比较大的U字型操作台。为了解决采光问题,在客厅和厨房间也做了白色折叠窗。室内设计师考虑到打理性,这里采用了铝合金材质与长虹玻璃相结合的折叠窗,一方面可以阻隔油烟,另一方面增加采光。

