欢迎光临聚设汇,装修找设计就上聚设汇!
   咨询电话:15602987227
登录    注册
聚设汇
首页 > 家装 > 恰春风

恰春风

设计公司

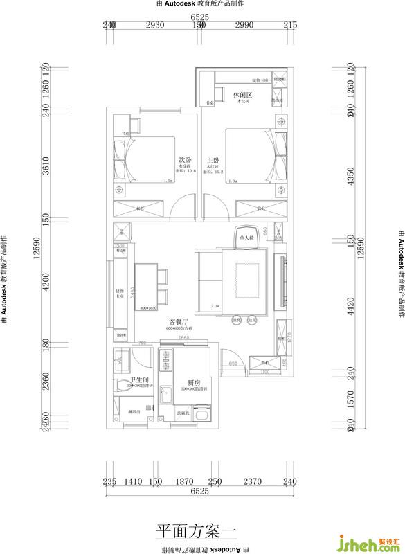
设计公司

同一个世界同一个萝莉,小朋友对粉色的喜爱你们一定能想象,但是业主不想要让儿童房太过卡通,为中和两者需求,不饱和的灰粉成为空间背景首选,家具挑选也简单硬朗,床品也没有大多儿童房的卡通图案,而是选用磨毛格纹处理的灰粉色,通过这些小细节满足小萝莉的公主心。书桌暂时还用不上,所以在床边摆放了一个主人房同款丝绒单人椅,既做床头柜用,也是空间颜色的点缀。

设计公司

卫生间厨房:原本厨卫采光很好,初期考虑选用客厅同系列仿古砖,得知后期会在窗外加装电梯的消息之后果断换做白色墙砖,厨房靠窗位置原本是洗衣机和洗碗机的空间,考虑到暂时还用不上,这个位置便临时充当了早餐台的角色,卫生间:蓝色浴室柜作为空间点缀色,卫生间也要清新活跃。

设计师在设计过程中要把握好一个度,前期功能使用,各种细节都要做到详细周到,后期软配不可做的太少,又不可做的太满,留一些空间。春风明月,柴米油盐,盘它,就看房子里的人怎么将它盘成梦想中的家了。

设计公司

广州市胡狸胭脂室内设计有限公司

设计收费:240-500 元/平             

擅长类型: 家装、豪宅、别墅

在线咨询

扫描二维码关注我们的微信

深圳市聚设汇文化传媒有限公司
主编热线:15602987227
总部:深圳市罗湖区梨园路128号宝能汽车大楼416单元
佛山、东莞、成都、重庆、福州、厦门、南昌、武汉、
杭州、苏州、温州、郑州、长春、沈阳、贵阳、柳州、
哈尔滨、九江等城市设立办事处
© 2017-2021 Jsheh.com 版权所有 粤ICP备17079093号
展开
回到顶部