项目地址|Project address| 成都
项目面积| Project area |建筑及花园1000㎡
设计单位|Design Institute|成都汇界空间设计机构
软装执行|Softpack execution| EMMA
设计总监|Design Director|耿可佩
设计团队|Design team|耿可佩.龙宇.白朝斌.白芮瑕
设计时间| Design time|2017
完工时间|Completion time|2020.12
摄影|Photography|404NF STUDiO
本案中设计师以中西贯通的灵巧构思,选用材质与色彩肌理极富质感的建筑装饰风格,在空间别墅设计中构建出有生命力和传承力的古典城堡生活场景。
负一层平面结构图
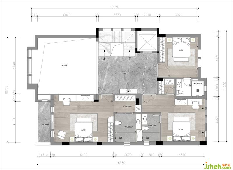
一层平面结构图
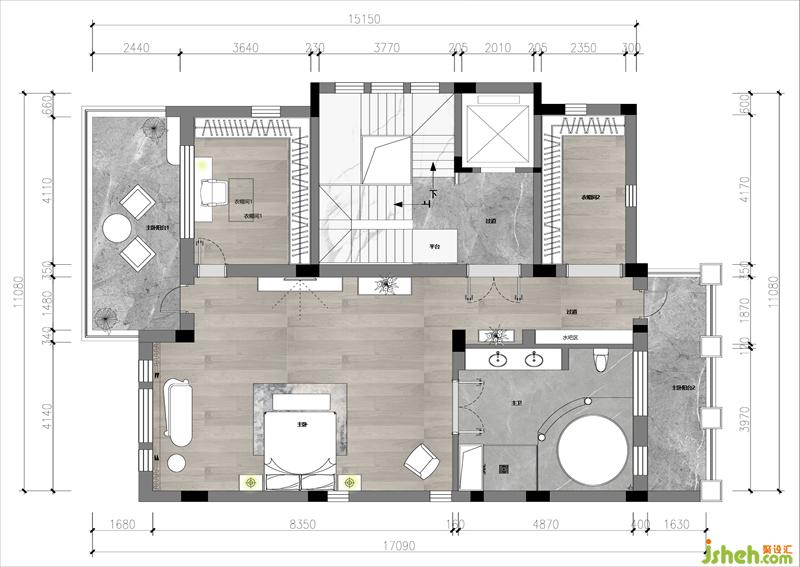
二层平面结构图
三层平面结构图
四层平面结构图
源自《唐顿庄园》中一句让人有记忆的表达:“太阳从唐顿庄园升起,在这个宏伟壮观的庭园里矗立着一座宏伟壮观的城堡,它看上去那么坚固,它所代表的那种生活方式将延续千年。”
成都牧马山蔚蓝卡地亚由美国Dahlin道林著名建筑设计师Kurt Donnelly倾心打造,以时尚现代手法演绎英法建筑美学,建筑立面采用优质石材与考究工艺,打造细腻如手工的艺术,辉煌若欧洲古典城堡的风情建筑。

此次,设计师耿可佩及其团队在成都牧马山蔚蓝卡地亚展开了一场当代居住的“文艺复兴”,讲述发生在水岸城堡中的居住故事。
从车马喧嚣的都市进入墅区,湖泊倒映出一弯拱桥,是归家的过渡,人们从社会角色转换到家庭角色。从城市纷繁喧嚣的“动”转向家庭温馨暖意的“静”,建筑重新梳理人们的情绪。


大厅中精致雕刻并盛满花草的罗马科林斯石柱带来浓烈仪式感,毛痕叶和涡卷图案被刻于柱头,勾勒出空间的秩序性,隔着悠悠岁月,历史与记忆散发着莹润的光。