欢迎光临聚设汇,装修找设计就上聚设汇!
   咨询电话:15602987227
登录    注册
聚设汇
首页 > 家装 > 一个鞋柜改变整个家的故事

一个鞋柜改变整个家的故事

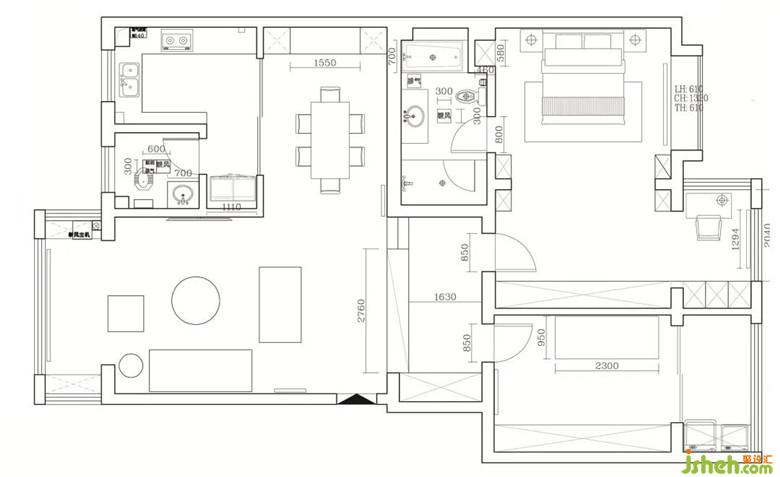
厨房与次卫洗手间干区打通,装修公司改为两扇大玻璃推拉门,增加了餐厅采光,同时密闭厨房油烟。另外,在餐厅增加西厨高柜,补充中厨收纳空间。

主卧房门装修公司改为朝向客厅,使之南北空气形成对流。整个空间无多余的造型,满墙衣柜从地到顶无接缝,空间得到最大释放,收纳功能做到最大化。

每一个空间都围绕着功能去设计,关注材料,将其特性无限纯化,整体保持了现代极简风格,同时最大程度释放空间体量,将空间利用最大化,融入功能,简而不减。

长沙德思奇家居有限公司

设计收费:300 元/平             

擅长类型: 酒店,医院,电竞馆,家装

在线咨询

扫描二维码关注我们的微信

深圳市聚设汇文化传媒有限公司
主编热线:15602987227
总部:深圳市罗湖区梨园路128号宝能汽车大楼416单元
佛山、东莞、成都、重庆、福州、厦门、南昌、武汉、
杭州、苏州、温州、郑州、长春、沈阳、贵阳、柳州、
哈尔滨、九江等城市设立办事处
© 2017-2021 Jsheh.com 版权所有 粤ICP备17079093号
展开
回到顶部