
整个庭院都是Ada的专属,花叶繁盛、光影温柔,防腐木墙围合出一方美妙花境,主人用大大小小的盆栽和不同的花器打造出错落有致、四季皆美的园景。
祖辈栽种的老橘树枝繁叶茂,现在成了整个庭院的视觉中心。到了秋天,金灿灿的硕果挂满枝头,是都市里难得一见的风景。
在花丛中为自己留一席雅座,静静地躲在花草丛里看书,或是游走在家的各处角落,别墅设计将印象中的度假氛围和家中区域一一比对,这种刚刚好的契合感,让Ada感觉万分惊喜,闲看花开、静待花落,岁月如歌说的就是这样的生活。
将小美好、小惊喜、小爱好统统都塞入到同一个空间,心爱的事物层层叠加,自然而然地蓄起家的个性与魅力。
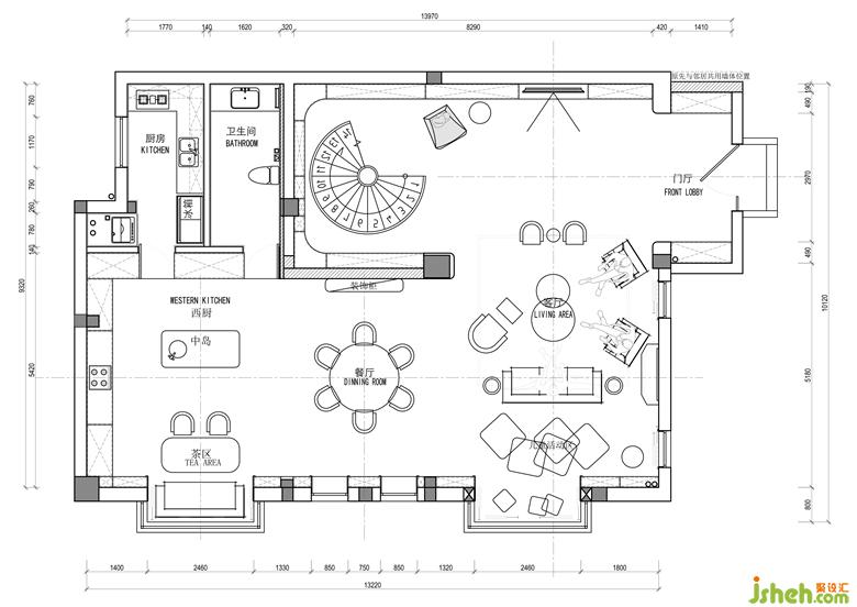
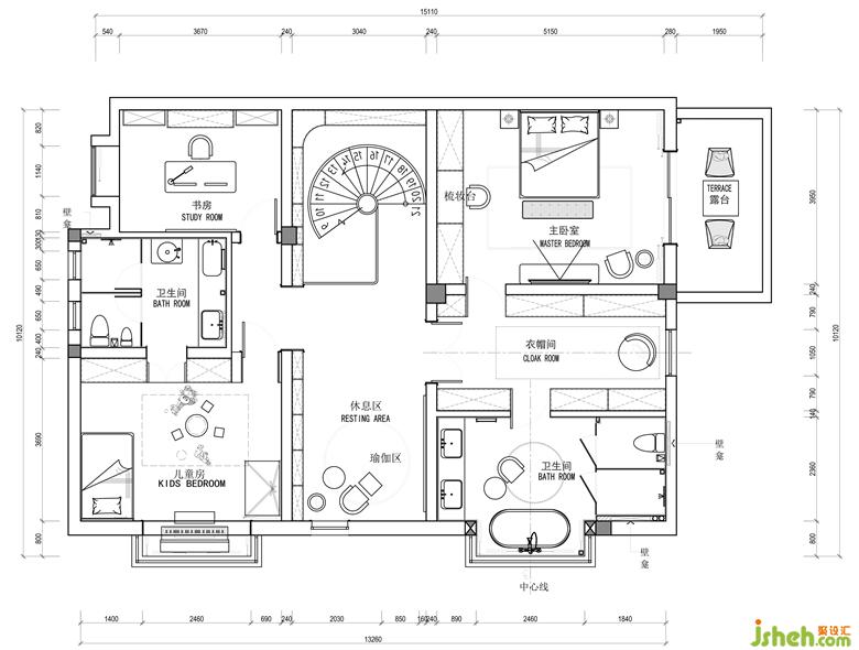
平面图

更多有关别墅设计请关注聚设汇装修平台: