客厅墙面运用了暗门的形态,利用暗门可以进入两个卧室。与此同时整面墙的线条用不规则的手法和一些巧妙的弧度增强了空间中的艺术感。线条是完全贯穿延伸的,让空间凸显了极强的趣味性和同时也增添了神秘感。
关门的状态呈现的是一个艺术品的画像。其实推开门,进入主卧,就完全别有洞天。别墅装饰首先引入眼帘的是宽敞的书房,连通主卧,有一个整体的感受,这个做法很好的区分了公共空间和私密空间。
书房

主卧

整体色彩上运用了代表时尚和尊贵的法式高级蓝,增加艺术感,形式上大量利用了壁纸,将自然艺术型的壁纸代入到空间之内,别墅装饰将自然融入到室内,将室内外相呼应,通过艺术的手法,使尽管在大城市的上海也能感受到自然的气息。使护墙板、暗门、壁纸、线条的相互碰撞融合,充满了对生活的热爱和追求。
主卫运用了干湿分区,为了体现艺术性,在干区的部分使用了壁纸,更好感受法式设计的味道。
次卧

卧室的飘窗让空间更好的延伸,与室外有很好的连接,在下雨时,小息一会,会在玻璃窗上看见流水,听见声音,明明坐在室内仿佛呆在室外的天伦之乐。
明丽的家具与艺术蓬勃才是唤醒生命的真正力量。床品使用古典的雕花形式但是用了现代的手法,整体黑色的色调与后面的自然景观的壁纸形成了呼应。
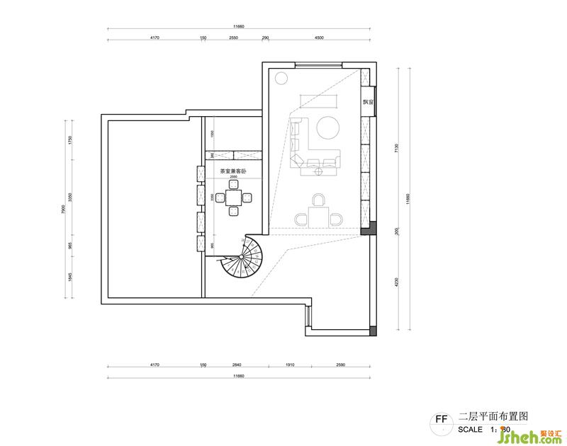
旋转楼梯、阁楼
把一部分斜顶足够高的地方,变成了二楼的阁楼,不够高的地方就保留出来变成了一楼的挑空空间,这样使一楼书房的位置就是有一个很好的挑空,二楼阁楼和书房之间是用透明玻璃相隔断,上下呼应,同时也可以让一楼书房的光借到二楼的阁楼当中,再加上两面的挑空区域运用大面积的镜面让空间更多的延伸,做到空间大光线好。
通过蓝色调的法式旋转小楼梯,进入二楼的小阁楼,形成了茶室、洽谈室、休息室于一体的空间。
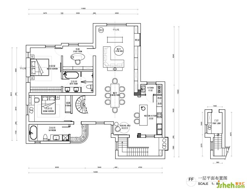
平面布置图:


更多别墅装饰资讯请关注聚设汇装修平台: