Area:200m²
Style:轻奢美式
House Type:别墅
Price:100w
Chief Designer:张霞
Service Pattern:全案设计
Project Address:成都.保利两河森林
Completion:2019
Design Agency:成都宏福樘空间设计
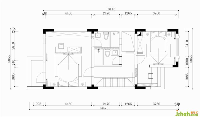
一层平面结构图
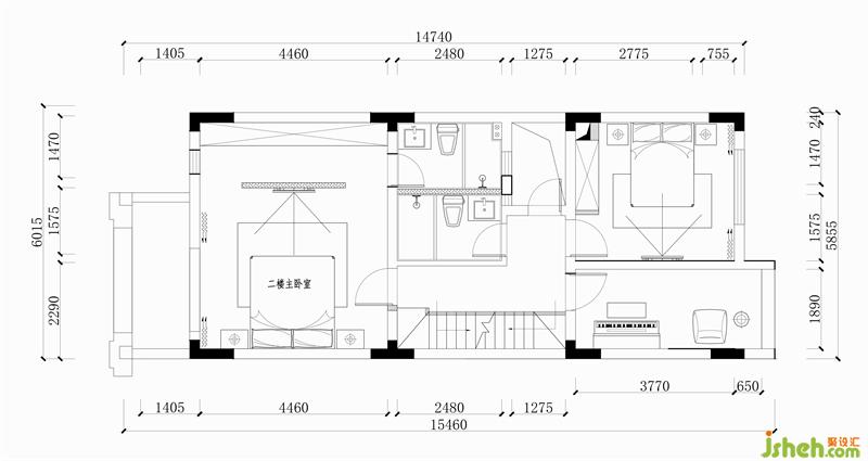
二层平面结构图
三层平面结构图
本案是为三世同堂的六口之家打造,屋主通过多年事业拼搏得以购入这套三层小别墅。在生意场上他有着猎豹般杀伐决断的魄力有着极强的掌控欲,而生活中他更热衷于美式生活的轻松自如,喜欢轻奢不失质感的现代简美。视野明快开阔的环境能让他能沉下心来尽享悠闲、全然放松。
该户型为联排别墅的中户型基本能满足其功能使用,所以我们对整体结构改动不大,将重心放在氛围营造和细节造型的研究上。色彩、结构、线条这些简单元素的运用,组合出富有层次感与精致度的高品质居住氛围。它代表着一种现代美式精英阶层的主流生活方式,有着简洁从容东西融汇的包容性,同时又兼具自然浪漫的随意性。
通过对屋主的色彩心理学研究分析,我们提炼出:暖灰、玫瑰粉、浅松石三个关键色。更多的根据屋主本身的气质去规划空间布局,将细腻的质感融入设计细节,使空间整体具有强烈的艺术张力和情感表现力。
不同于传统美式的“华而不实”复杂线条与多余装饰,我们选择干净利落的简约线条,从墙面、顶部进行切割,成为贯穿空间整体的设计元素。墙面立体线条细节处嵌入金属线条,用艺术化的手法呈现空间层次的多种表达,形成一种微妙的视觉平衡。
金属铆钉、褶皱纽扣、轮廓简洁扶手线条极具质感与舒适度,呈现出恰到好处的轻奢韵味。有着美式代表元素的壁炉被安排到沙发背后,简化的造型低调内敛既未喧宾夺主又很难将其忽略,多元化的元素碰撞出鲜明个性,使空间更富层次感与精致度。


原户型扩容后做成了钢琴功能区,摒弃复杂的装饰展现出低调奢华的生活细节。
