欢迎光临聚设汇,装修找设计就上聚设汇!
   咨询电话:15602987227
登录    注册
聚设汇
首页 > 家装 > 成都嘉年华御府装修设计:留白的家

成都嘉年华御府装修设计:留白的家

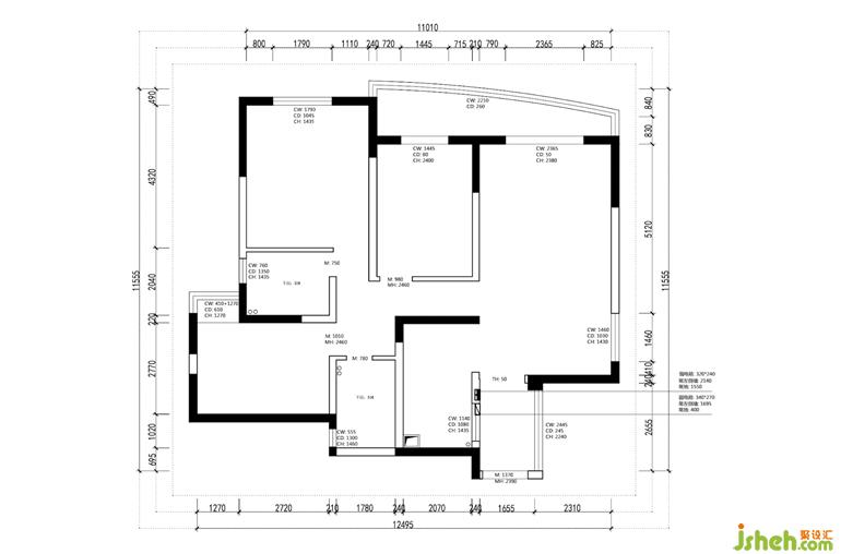
成都嘉年华御府装修设计改造说明:

1.下沉式玄关设计,空间分区明确。

2.厨房内侧墙体全部去掉,成都嘉年华御府装修设计让空间整体看上去大气简洁,边岛的设计增加空间整体氛围敢与实用性。

3.成都嘉年华御府装修设计利用过道空间增加收纳。

4.去掉主卧与多功能房中间墙体增加衣柜使用面积,同时斜切门洞扩大主卧室 跟卫生间

更多成都嘉年华御府装修设计请关注聚设汇装修平台:

成都欢乐佳园设计

设计收费:200 元/平             

擅长类型: 住宅

在线咨询

扫描二维码关注我们的微信

深圳市聚设汇文化传媒有限公司
主编热线:15602987227
总部:深圳市罗湖区梨园路128号宝能汽车大楼416单元
佛山、东莞、成都、重庆、福州、厦门、南昌、武汉、
杭州、苏州、温州、郑州、长春、沈阳、贵阳、柳州、
哈尔滨、九江等城市设立办事处
© 2017-2021 Jsheh.com 版权所有 粤ICP备17079093号
展开
回到顶部