欢迎光临聚设汇,装修找设计就上聚设汇!
   咨询电话:15602987227
登录    注册
聚设汇
首页 > 家装 > 四合宅

四合宅

唐山别墅装饰建造过程:

平面图纸:

概念年图解

总平面图

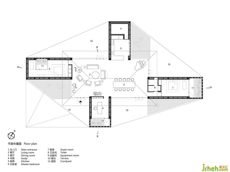
平面布置图

南立面图

西立面图

剖面图

构造详图

工作模型

更多唐山别墅装饰请关注聚设汇装修平台:

建筑营设计工作室 创始人

设计收费:600 元/平             

擅长类型: 教育,文化,店铺,别墅

在线咨询

我的作品更多>>

扫描二维码关注我们的微信

深圳市聚设汇文化传媒有限公司
主编热线:15602987227
总部:深圳市罗湖区梨园路128号宝能汽车大楼416单元
佛山、东莞、成都、重庆、福州、厦门、南昌、武汉、
杭州、苏州、温州、郑州、长春、沈阳、贵阳、柳州、
哈尔滨、九江等城市设立办事处
© 2017-2021 Jsheh.com 版权所有 粤ICP备17079093号
展开
回到顶部