项目名称东方明珠广场-刘总雅居设计
楼盘名称东方明珠广场
项目所在城市福建省厦门
项目完成日期2021.04
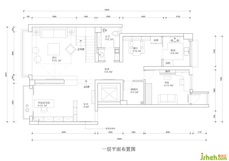
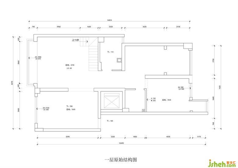
项目面积220平米
项目总造价100万
设计公司:房建美装饰
主持设计:郭艳
本案是两个小孩与一对年轻夫妻居住,业主希望有足够多的收纳,空间分明的情况下能够最大化视觉的宽敞舒适,雅居设计整体格调干净不失优雅,温暖且灵动,设计中运用了一些透视、镂空的手法,配合镜面和亮面的材质,深浅材质搭配,最大化营造空间感的同时,根据窗户朝南采光充沛,将光影引入室内与适合的材质融合,使得空间更加耐人寻味!











更多雅居设计请关注聚设汇装修平台: