主持设计师:龚定豪
设计公司:墨一空间装饰设计工程有限公司
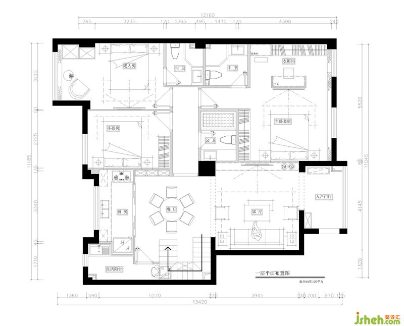
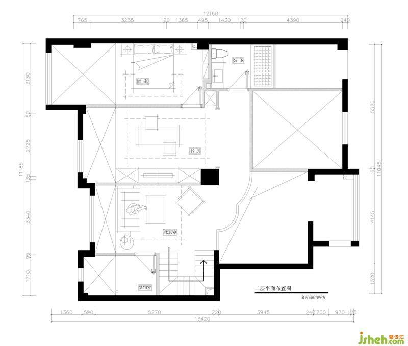
项目面积190²
项目地址福建安溪
项目摄影林心妍
完成时间2019年3月
客户需求客户家庭成员有4人,两个小孩,父母偶尔来这边居住。客户在当地的房子比较多,这套主要是小孩读书用房。所以更多的功能,是考虑到两个小孩的学习和娱乐的空间。
设计风格业主装修过的风格比较多,所以这次想尝试美式的空间,想让家的整体氛围比较温馨。
落地进行本案所有的物品采购以及挑选,设计与业主进行了多次探讨与深究。到了广州的家具卖场进行挑选。美式装修设计



美式装修设计



美式装修设计


