欢迎光临聚设汇,装修找设计就上聚设汇!
   咨询电话:15602987227
登录    注册
聚设汇
首页 > 家装 > 现代轻奢设计丨简致与美学

现代轻奢设计丨简致与美学

床头采用爱马仕橙,有着黄色的明媚,红色的艳丽,就像洒在海面的阳光,现代轻奢设计酸酸甜甜的橘子一般,视觉感超级暖心,背景墙采用灰蓝色,给人一种面朝大海的清新。

整个卫生间以香槟金做为辅色,显得整个卫生间不那么的单调,但优势在于浴室柜,下面带有橱柜可以更好的放置隐私物品,当然也可以放日常用品。

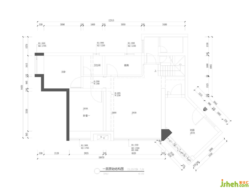
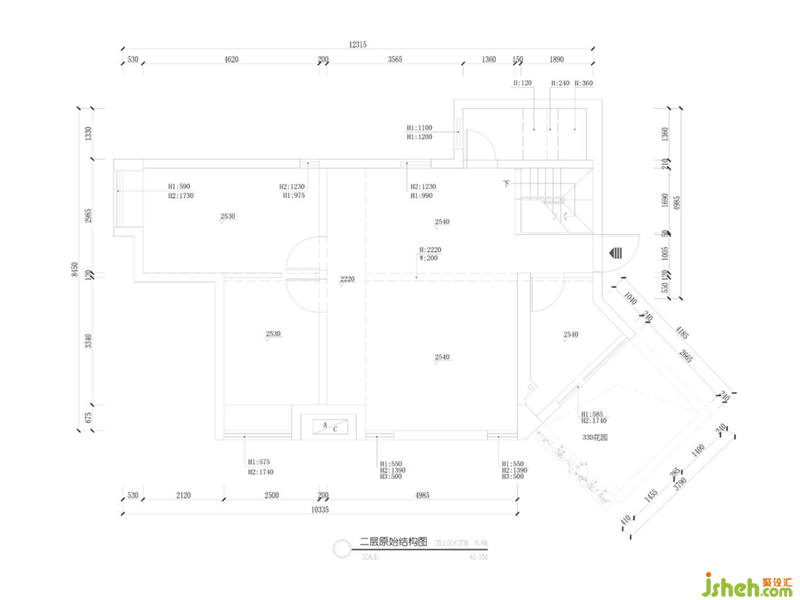
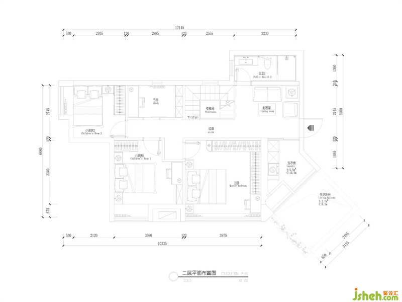
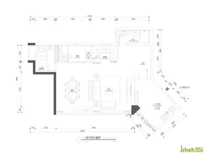
平面图:

更多现代轻奢设计请关注聚设汇装修平台:

深圳市普罗吉装饰设计有限公司创始人、总设计师

设计收费:300-900 元/平             

擅长类型: 豪宅,会所,办公,商业

在线咨询

扫描二维码关注我们的微信

深圳市聚设汇文化传媒有限公司
主编热线:15602987227
总部:深圳市罗湖区梨园路128号宝能汽车大楼416单元
佛山、东莞、成都、重庆、福州、厦门、南昌、武汉、
杭州、苏州、温州、郑州、长春、沈阳、贵阳、柳州、
哈尔滨、九江等城市设立办事处
© 2017-2021 Jsheh.com 版权所有 粤ICP备17079093号
展开
回到顶部