
餐厅设计

埂上设计出于实验性的想法,也为回应这种单一的本质,尝试以设计呈现空间的纯粹性,将空间构成中的“杆件”这一项单独拎出,作为唯一的变量进行探讨。在设计过程中,他们让材料与色彩同质化,退在“杆件”的后面。空间的原本结构三面都是环绕的玻璃幕墙,恰好能支撑设计的构想。

“环绕的玻璃肋已经为我们的‘柱林’形成了第一阶段的包裹感与层次感,与我们在内部因为道路系统设置的‘柱林’形成的其他层次叠加在一起,很容易让人模糊室内与外界的边线。”这种模糊,无形中放大了空间的场地与氛围,视线上通透的用餐环境也会让人有种开阔与放松的心境,从而把人们的注意力引到品味牛排本身上来。餐厅设计




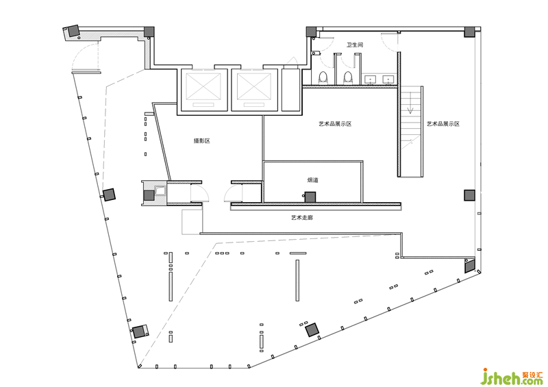
一层平面图▽
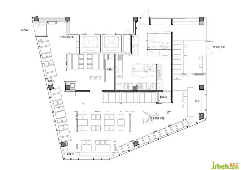
二层平面图▽
更多餐厅设计资讯请关注聚设汇装修平台: