欢迎光临聚设汇,装修找设计就上聚设汇!
   咨询电话:15602987227
登录    注册
聚设汇
首页 > 商业 > 开启一场情绪与空间的对话

开启一场情绪与空间的对话

山川自然之意境,情景交融、虚实相生,活跃着生命律动的韵味,亦为国人情思中最为厚重的沉淀,设计师将此情怀置入空间当中,咫尺之间、格调与气韵相生,衍生出无穷的诗意空间。

设计公司

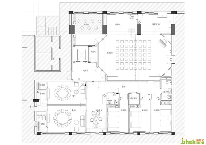
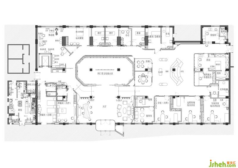
项目平面图

▲1F 平面图

▲2F 平面图

AFFD设计事务所

设计收费:600 元/平             

擅长类型: 康养中心

在线咨询

扫描二维码关注我们的微信

深圳市聚设汇文化传媒有限公司
主编热线:15602987227
总部:深圳市罗湖区梨园路128号宝能汽车大楼416单元
佛山、东莞、成都、重庆、福州、厦门、南昌、武汉、
杭州、苏州、温州、郑州、长春、沈阳、贵阳、柳州、
哈尔滨、九江等城市设立办事处
© 2017-2021 Jsheh.com 版权所有 粤ICP备17079093号
展开
回到顶部