欢迎光临聚设汇,装修找设计就上聚设汇!
   咨询电话:15602987227
登录    注册
聚设汇
首页 > 商业 > 武汉售楼处设计:极简主义的克制美学

武汉售楼处设计:极简主义的克制美学

休闲区及VIP室皆选用高雅舒适的家具。华贵的茶几,优雅的沙发,精美的摆件,一一诉说着理想城市的惬意与悠然。日光洒下,更觉明暖怡人。

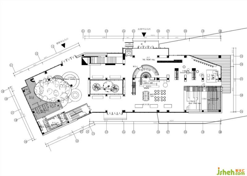
儿童阅读区由城市岛主题装置构成,简洁的木艺构架构建出山谷般的曲线形态,呼应着当地的丘陵地貌。不同方位的洞口设置则为小朋友们营造出有趣的娱乐天地。武汉售楼处设计群羊艺术挂画及布艺动物公仔共同诠释着亲近自然的主题。小朋友们不时从山洞中跑进跑出,与小伙伴们相互嬉戏,尽情享受着无忧无虑的孩提时光。

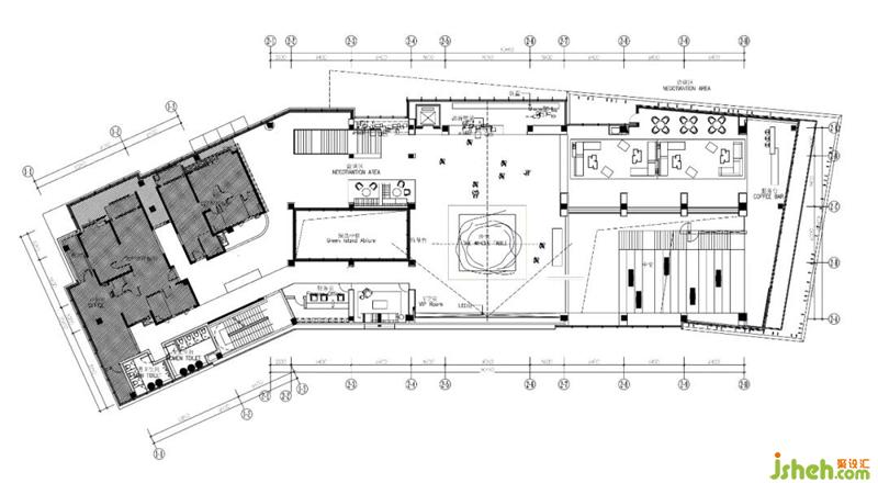
△一层平面图

△二层平面图

更多武汉售楼处设计请关注聚设汇装修平台:

飞檐兰舍设计

设计收费:面议 元/平             

擅长类型: 商业、样板房、售楼处

在线咨询

扫描二维码关注我们的微信

深圳市聚设汇文化传媒有限公司
主编热线:15602987227
总部:深圳市罗湖区梨园路128号宝能汽车大楼416单元
佛山、东莞、成都、重庆、福州、厦门、南昌、武汉、
杭州、苏州、温州、郑州、长春、沈阳、贵阳、柳州、
哈尔滨、九江等城市设立办事处
© 2017-2021 Jsheh.com 版权所有 粤ICP备17079093号
展开
回到顶部