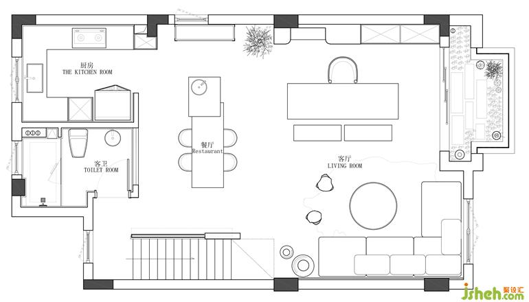
居住者希望公共空间在格局上尽量开阔,多一些空间之间的连动性,所以在一楼的客餐厅并未明确设限区域,而是以体块的形式在各个区域呈现相对独立的中心,厨房自然也是呈开放式。
木质的天然质感,本身便带有人文属性。杭州家居设计呈现的家居氛围——安静、古朴。


楼梯是贯穿整个居室、层间的必然要素,破仅仅是垂直交通构件的传统印象,杭州家居设计不拘泥于楼梯本身的通道价值,或者可以说是一个艺术走廊的概念形式,我们希望漫步者不是匆匆往返,而是在家的每一处都可以是停下、静默欣赏的地方。楼梯扶手选用通透的玻璃材质,一楼结合老木头的元素与造型相互穿插,二楼以两种材质结合来呈现,免除碍于楼梯狭小、格局呆板的问题。


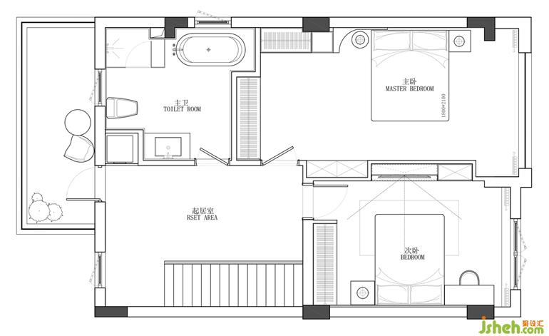
居住者要求家里动静区域明确,动区规划在一楼,二楼是睡眠区。
卧室主打暖色调,选用偏黄色艺术漆营造老房子土墙效果,没有冗赘的装饰,归还纯粹的睡眠空间。杭州家居设计重组空间结构,柜体推入墙体,墙面延伸曲面连至衣柜,空间衔接顺畅干净。





更多杭州家居设计请关注聚设汇装修平台: