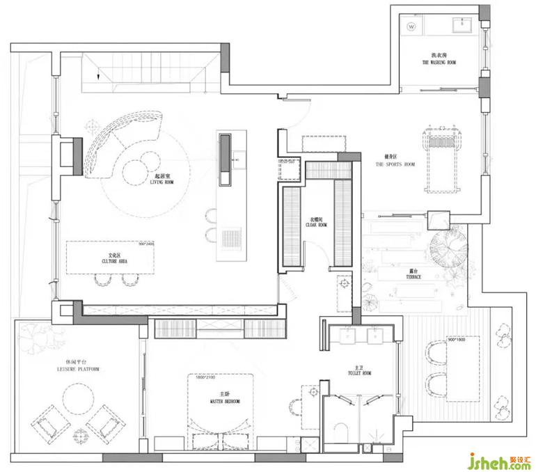
顶跃的户型需要楼梯连接上下两层空间,原楼梯几近整个空间的中心位置,无论是对初入家的开阔感还是空间的布局规划,都有着极大的限制。杭州复式设计师改变通往二楼入口,贴于客厅一隅,悬浮式阶梯打造扶梯而上的轻盈。
楼梯布局同时影响着两层空间的规划,改变位置后的楼梯为二楼的布置留有充足的发挥空间。不同于一楼客餐厅就餐或者与亲朋好友的社交场所,二楼起居室偏向于更具私密性、是家人之间的互动场所。



杭州复式设计原有户型采光极佳,无需过多考虑引光入室而是如何最大化利用阳光。思量活动最密集、停留时间最久的区域,沙发、书桌、包括一楼的进餐区,合理化向南贴近与阳光投入的地方交汇。


杭州复式设计一楼公共区域纳取女业主需求,以烹饪烘焙为着重点,多柜体收纳空间、宽绰岛台打造制作美食糕点的场所。就餐台面与岛台穿插衔接,以及西厨旁的中厨,整个餐厨空间三点一线,动线完整、衔接自然、流畅。



更多杭州复式设计请关注聚设汇装修平台: