设计机构 I Designer Department:菲拉设计
项目地址 I Project address:浙江杭州 ·九龙仓雍景山
项目类型 I Project type:硬装设计,软装宅配
面积 I Square Meters:190㎡
户型 I Door Model:跃层
摄影师 I Photography:林峰
宁静与忧伤之间,沉默与孤独之间
彳亍追逐,和解与对抗
Between peace and sorrow, silence and loneliness
Slowly pursued, reconciliation and confrontation
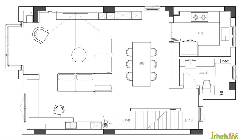
一楼平面图
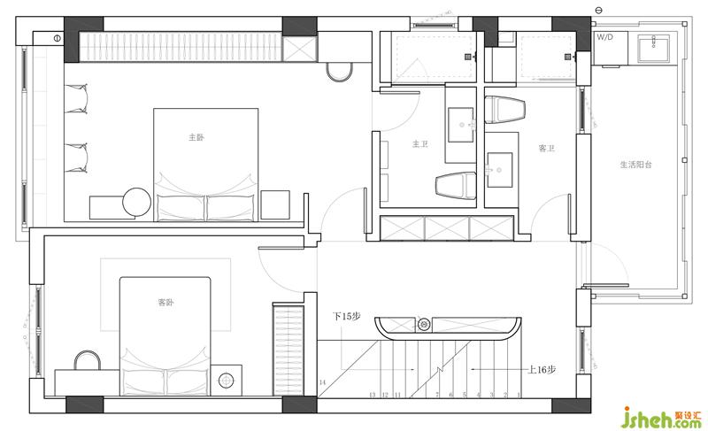
二楼平面图
黑白灰经典配色,加之于自然界的木色、绿色,丛林与文明之间、理性与感性之间,杭州家居设计陶染着如此的气息。
The classic colors of black, white and grey, combined with the wood color and green in nature, flow with such breath between jungle and civilization, rationality and sensibility.

L型沙发围合态势回应不同空间角度的对话与互动,沙发的重新组合排列,可变量引导家居生活的多种可能。
The enclosed situation of L-shaped sofa responds to the dialogue and interaction of different spatial angles. The recombination and arrangement of sofa can guide a variety of possibilities of home life.


收纳与感官之间,深度剖析家居美学,借助材质、结构的再生组合,多形式化的艺术表达来与收纳的实用主义之间做平衡。
Between storage and sense, home aesthetics is deeply analyzed with the help of material and structure regeneration combination. Multi-formalized artistic expression to balance with restrained pragmatism.
