沙漠里的荆棘,时针遣散的记忆;
绝处逢生的渴望,蛮荒之地的丛生肆意。
Thorn in the desert, clockwise demobilized memory;
Desperate for survival, the wilderness of wanton growth.



The bedroom / 卧室

过度装饰大于功能性的老旧背景尚未留有收纳余地,秉承功能与美感平衡的设计理念,拆除原有造型做圆弧吊顶,以简洁克制的设计手法呈现理性与浪漫的协同韵律。
The old background with excessive decoration more than functionality has not left room for storage. Adhering to the design concept of balance between function and beauty, the original shape is removed and the circular ceiling is made, presenting a rational and romantic coordinated rhythm with simple and restrained design techniques.
Children room / 儿童房

舒适的生活色彩越入孩童房屋,不易被遗弃的空间着色,在元素上也是力求洁简而童趣曼妙,圆盘、动物地毯,弧形元素的包容与温和,唱和着儿童所在阶段的烂漫与遐想,亦然把握着成长历程的审美变化尺度。
Comfortable life colour enters child house more, the space that is not easy to be abandoned is colored, also be doing one's best to clean Jane and tong qu lithe on the element, carpet of disc, animal, of arc element contain with gentleness, sing with the artless and daydream that children is in stage, also be holding the aesthetic change scale of growing course.


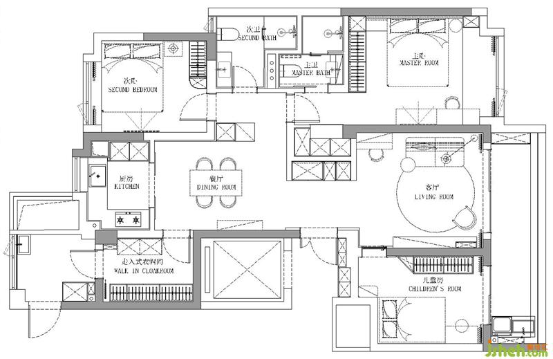
平面图
更多精装房改造设计请关注