欢迎光临聚设汇,装修找设计就上聚设汇!
   咨询电话:15602987227
登录    注册
聚设汇
首页 > 商业 > 仲美山自助烤肉PLUS设计

仲美山自助烤肉PLUS设计

美学创意点亮商业逻辑,FUNUN LAB以甲方思维推演商业空间的运营,通过宏观塑造和微观演绎手法,将整个空间的力量与精致、粗犷与精致圆融组合,演绎了食与境的现代灵感,让宏大空间也能灵动有趣、质感饱满,举重若轻,自然而然地帮助品牌完成了视觉与品类的核心升级。

食与境,自由与高级感,美学与商业逻辑,并非是互斥的对立面,FUNUN LAB将继续以设计的巧思探索和重塑商业空间的更多可能性。

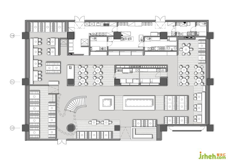
一楼平面图

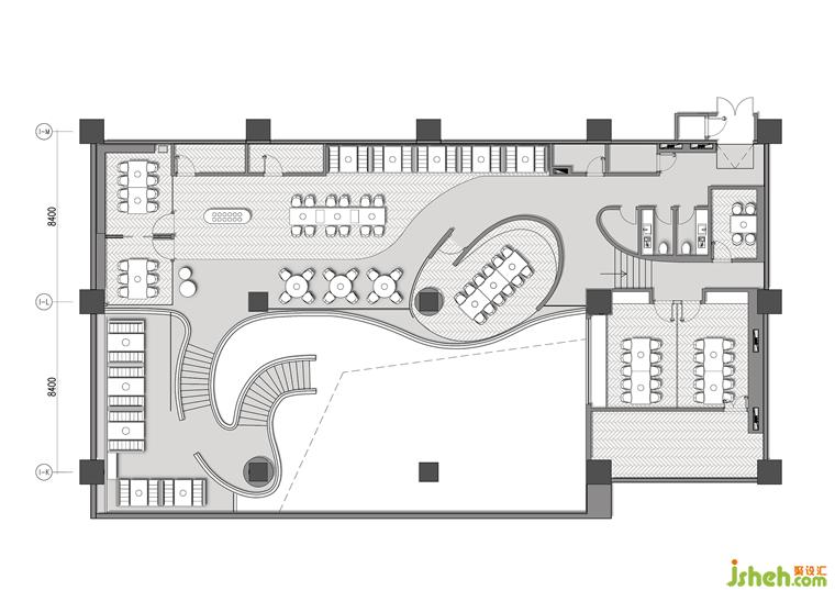
二楼平面图

更多自助烤肉PLUS设计请关注聚设汇装修平台:

FUNUN LAB设计研究室创始人

设计收费:600 元/平             

擅长类型: 展厅

在线咨询

扫描二维码关注我们的微信

深圳市聚设汇文化传媒有限公司
主编热线:15602987227
总部:深圳市罗湖区梨园路128号宝能汽车大楼416单元
佛山、东莞、成都、重庆、福州、厦门、南昌、武汉、
杭州、苏州、温州、郑州、长春、沈阳、贵阳、柳州、
哈尔滨、九江等城市设立办事处
© 2017-2021 Jsheh.com 版权所有 粤ICP备17079093号
展开
回到顶部