欢迎光临聚设汇,装修找设计就上聚设汇!
   咨询电话:15602987227
登录    注册
聚设汇
首页 > 商业 > 蜂巢电竞俱乐部2.0

蜂巢电竞俱乐部2.0

室内设计师

▼休闲区

室内设计师

▼走道

▼独立房间

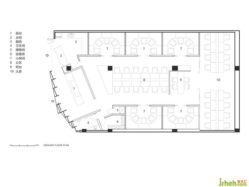
▼平面图

室内设计师

方楠设计顾问有限公司

设计收费:面议 元/平             

擅长类型: 家居住宅,商业店铺,建筑景观

在线咨询

我的作品更多>>

  • MOLE点击:3421次

扫描二维码关注我们的微信

深圳市聚设汇文化传媒有限公司
主编热线:15602987227
总部:深圳市罗湖区梨园路128号宝能汽车大楼416单元
佛山、东莞、成都、重庆、福州、厦门、南昌、武汉、
杭州、苏州、温州、郑州、长春、沈阳、贵阳、柳州、
哈尔滨、九江等城市设立办事处
© 2017-2021 Jsheh.com 版权所有 粤ICP备17079093号
展开
回到顶部