
L先生还酷爱阅读,博览群书,书房内摆满了各类书籍典藏,并为他阅读或创作提供了安静的场所。借助天井采光,将跑步机安放其下,酣畅运动之际,与自然也近在咫尺。此外,末端的一扇门同样具备机动可变性,能因需实现影音室与书房的联通或独立。
拍摄当天,正值女主人在家,她不由得感叹道:“回想起我们决定重塑这个家的那刻,眼前的一切都证明了我们的选择多么正确和值得!”这一瞬,家的情感与幸福仿佛被赋予了实体形态。诚然,家就是为家人带来美好生活体验,而这也正是我们对每一座私宅的设计愿景与价值导向!
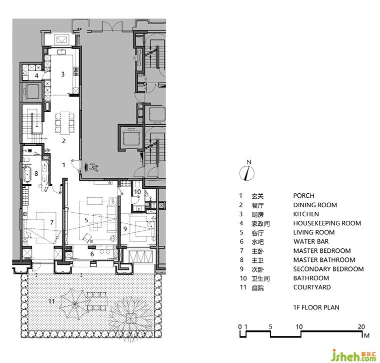
1F平面图
B1F平面图
更多豪宅设计请关注聚设汇装修平台: