
室内对造型、尺度的把控,同样关乎居住感受。客卧床头柜采用高低式布局,柜体舍弃一体顺延至顶的形式,渲染轻盈的呼吸感,不经意间释放出宁静、慵懒的包容气息。
这座珠海横琴度假居所,远离浮躁喧嚣,挖掘自然与空间美学,以设计承载并服务于生活,让业主夫妇在这个繁杂的都市生活中,度假居所设计拥有属于自己的避风港,在全方位的感官触觉体验下,褪下疲惫,拥抱最舒适安逸的状态。同时在平和中传递并实现着“大隐隐于市,归家即度假”的探寻,也令外在的呈现与内在的价值达到统一。
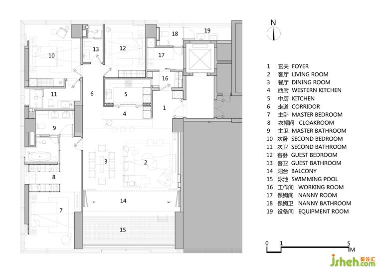
平面图
更多度假居所设计请关注聚设汇装修平台: