欢迎光临聚设汇,装修找设计就上聚设汇!
   咨询电话:15602987227
登录    注册
聚设汇
首页 > 家装 > 常州天安别墅样板间设计

常州天安别墅样板间设计

休闲区从兴趣爱好、娱乐社交的触点出发,依托建筑结构延展并利用采光井,常州天安别墅设计将光照引入,打破沉闷。在软装陈设上,也充分考量其与空间轮廓的适配以及构成关系,在形、色、质上全方位统筹,精心呵护每一细腻点滴中的惬意享受。

常州天安别墅样板间,敏锐关照居者内心感受,将国际视野、酒店风情、人文气息注入这一湖岸府邸,外部视觉的流露与内在情感的映射,相得益彰。在逐步的引导与浸润下,触发品质和精神深层共鸣,共筑奢享之居。

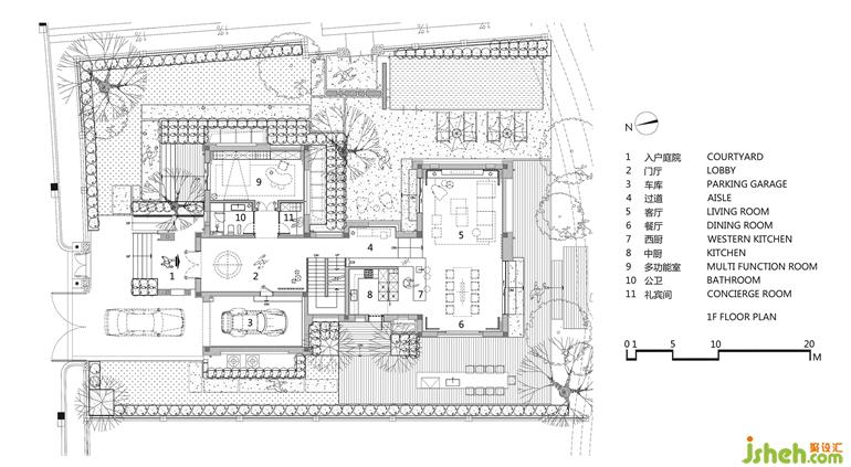
1F平面图

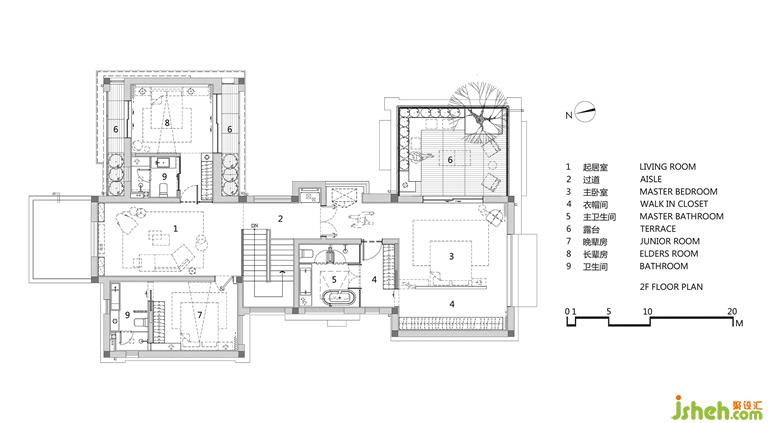
2F平面图

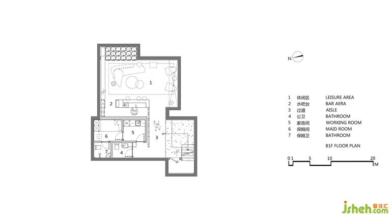
B1F平面图

更多常州天安别墅设计请关注:

壹舍设计创始人

设计收费:面议 元/平             

擅长类型: 地产、办公室、店铺

在线咨询

扫描二维码关注我们的微信

深圳市聚设汇文化传媒有限公司
主编热线:15602987227
总部:深圳市罗湖区梨园路128号宝能汽车大楼416单元
佛山、东莞、成都、重庆、福州、厦门、南昌、武汉、
杭州、苏州、温州、郑州、长春、沈阳、贵阳、柳州、
哈尔滨、九江等城市设立办事处
© 2017-2021 Jsheh.com 版权所有 粤ICP备17079093号
展开
回到顶部