一条主轴线顺畅关联起主卧套间的各功能分区。主卧与一楼在选材运用、叠墅设计语汇上一脉相承,从容的基底中透露着克制性与真实感。融入随性气息,让材质与肌理碰撞,在明与暗、圆与方、刚与柔间,诠释不拘的奥义。
步入式衣帽间开放的格局、完善的分区、利落的构造一目了然。叠墅设计引入镜象手法,令这一场域扩容,一镜之隔使其相映成趣,也折射出无限遐想。

卫浴空间以台盆镜柜充当枢纽向外围发散,调动多维感观,给予便捷呵护。叠墅设计在光线引入和氛围营造上也细致规划,浴缸临窗而设,内外交融对话,让沐浴变得更加惬意与趣味。


方案推敲过程图
理性的周密考量与感性的人文关怀,共同交织出家的温度。长辈房、儿童房根据不同居者的特性而适配设定,叠墅设计以实际使用舒适度切入,对每位家庭成员的差异需求进行平衡与满足。
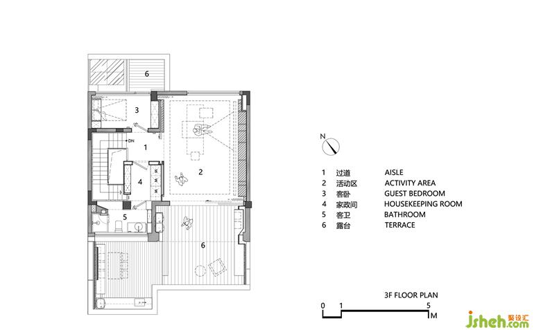
家庭全员的情感凝聚也需精心安放,三楼活动区以大道至简的廓形,悦纳多元之需,强调其变化与成长性,也为未来预留更多可能。一进到底的格栅节奏井然,叠墅设计延伸引导视角并兼具储物功能,与室外露台联动,模糊界限,将生活的界面扩充得广袤无垠。
上海徐公馆,不追逐时髦,不囿于时代,不惧潮流更迭,以自身凝练的恒久特质,熠熠生辉。设计师方磊表示:“希望在这个新家,借由不同情境链接起一家人的惬意相伴,让隽永且松弛的状态潜移默化间滋养着他们的日常起居,满怀热情与信心的开启这一段全新的生活旅程!”
1F平面图
2F平面图
3F平面图
更多叠墅设计请关注聚设汇装修平台: