欢迎光临聚设汇,装修找设计就上聚设汇!
   咨询电话:15602987227
登录    注册
聚设汇
首页 > 商业 > 天津遇上波士顿:优雅又时髦的现代摩登风范

天津遇上波士顿:优雅又时髦的现代摩登风范

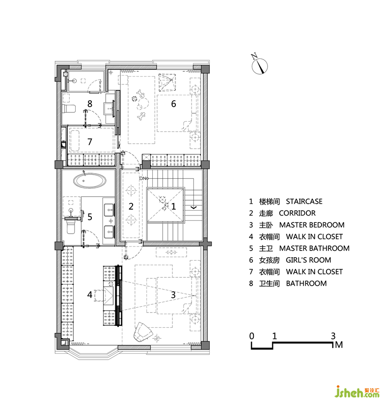
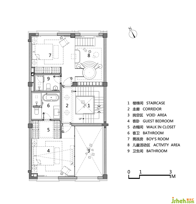
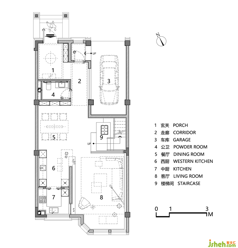
梳妆台左侧破除常规,经由一块竖向玻璃与卫浴室隔断,让这一隅饶有情趣。

设计师方磊坦言:“我们力求实现各功能分区的顺畅流转,赋予其专属匹配的氛围,同时注入一脉相承的共通之处,即以功用性为导向,又不放过任何一个彰显品质的细节。”诚然,天津招商贝肯山橡实园别墅样板间,在收放之间以不羁的态度,恰如其分般释放出大都会生活的雅致风貌,让舒适与潮流并存,现代与摩登交辉。

室内设计师

室内设计师

室内设计师

壹舍设计创始人

设计收费:面议 元/平             

擅长类型: 地产、办公室、店铺

在线咨询

扫描二维码关注我们的微信

深圳市聚设汇文化传媒有限公司
主编热线:15602987227
总部:深圳市罗湖区梨园路128号宝能汽车大楼416单元
佛山、东莞、成都、重庆、福州、厦门、南昌、武汉、
杭州、苏州、温州、郑州、长春、沈阳、贵阳、柳州、
哈尔滨、九江等城市设立办事处
© 2017-2021 Jsheh.com 版权所有 粤ICP备17079093号
展开
回到顶部