欢迎光临聚设汇,装修找设计就上聚设汇!
   咨询电话:15602987227
登录    注册
聚设汇
首页 > 家装 > 上海西郊明苑别墅

上海西郊明苑别墅

公卫立面由大面积黑白马赛克铺呈,精巧细节中映衬着时尚基因与三维观感。

乒乓球室以白色为主基调,简洁明快的清爽气息扑面而来。健身器材上方的人造光顶精妙模拟自然光照,仿佛于自然中畅快淋漓挥洒汗水。

“总有一日,我要在一个充满阳光的早晨醒来,静静的听窗外如洗的鸟声,那是多么安适的一种苏醒。” 三毛的向往也是大多数人的心声。西郊明苑别墅正是以此为目标,从生活点滴着笔,舒畅至上,采用中性优雅的色调,尊重材料本身的质感,统筹室内与自然景观的平衡,打造诗意栖居之所!

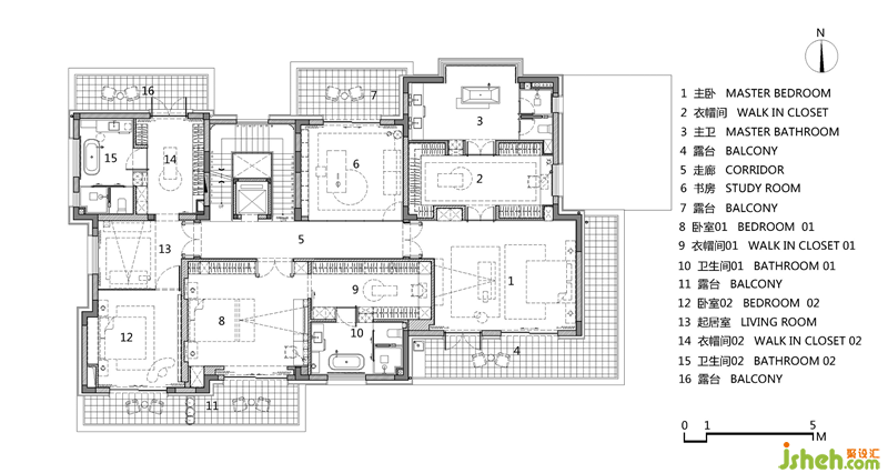
1F平面图

2F平面图

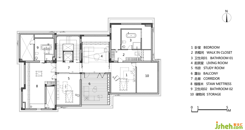
3F平面图

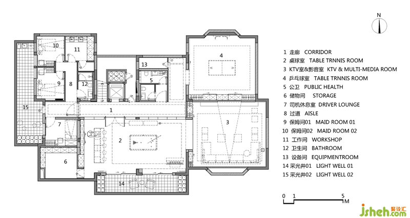
B1平面图

壹舍设计创始人

设计收费:面议 元/平             

擅长类型: 地产、办公室、店铺

在线咨询

扫描二维码关注我们的微信

深圳市聚设汇文化传媒有限公司
主编热线:15602987227
总部:深圳市罗湖区梨园路128号宝能汽车大楼416单元
佛山、东莞、成都、重庆、福州、厦门、南昌、武汉、
杭州、苏州、温州、郑州、长春、沈阳、贵阳、柳州、
哈尔滨、九江等城市设立办事处
© 2017-2021 Jsheh.com 版权所有 粤ICP备17079093号
展开
回到顶部