欢迎光临聚设汇,装修找设计就上聚设汇!
   咨询电话:15602987227
登录    注册
聚设汇
首页 > 商业 > 中海重庆璟里样板间设计

中海重庆璟里样板间设计

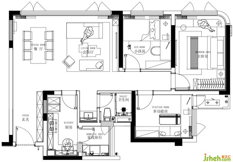
重庆样板间设计以经典的沙漠白为主色调辅以简约动感的橙色元素,这个家最打动人心的地方在于它的光线,设计师最初设想时就决定要尽可能保持卧室的采光,呈现出极简和谐。

儿童房以浅绿色作为主体孩子的玩具沿着置物架布置,勾勒出童真童趣又颇具未来感的空间氛围。

更多重庆样板间设计请关注聚设汇装修平台:

香港方黃建築師事務所创始人、设计总监 港派国际风引领者,健康住宅标准设计专家

设计收费:1000 元/平             

擅长类型: 样板房、售楼处、豪宅别墅

在线咨询

扫描二维码关注我们的微信

深圳市聚设汇文化传媒有限公司
主编热线:15602987227
总部:深圳市罗湖区梨园路128号宝能汽车大楼416单元
佛山、东莞、成都、重庆、福州、厦门、南昌、武汉、
杭州、苏州、温州、郑州、长春、沈阳、贵阳、柳州、
哈尔滨、九江等城市设立办事处
© 2017-2021 Jsheh.com 版权所有 粤ICP备17079093号
展开
回到顶部