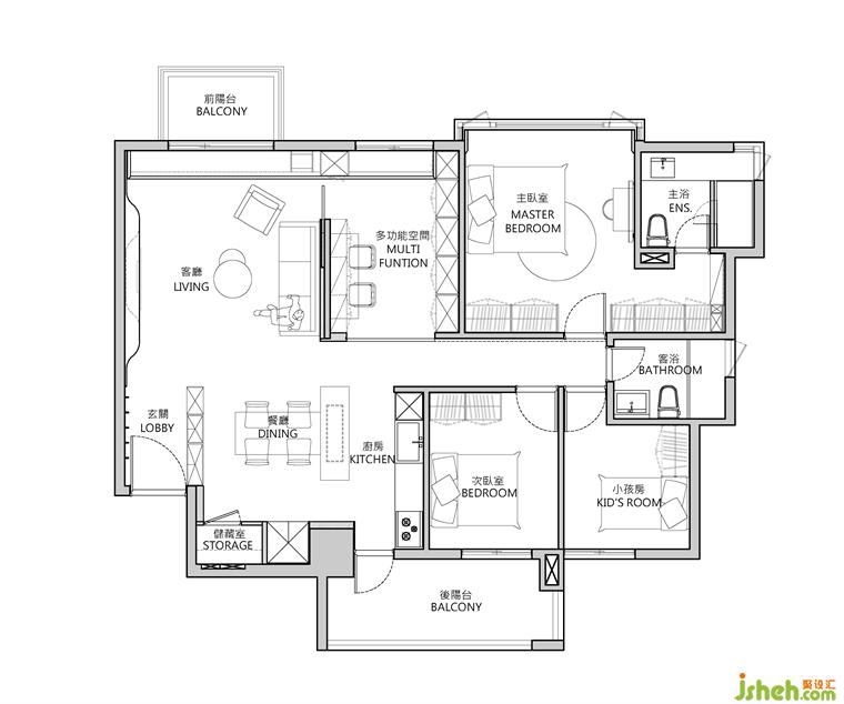
豪宅设计延续公共空间的大片窗景,主卧也有大片的窗户,这里也使用桦木框来呼应开放空间的设计,在家中形成多个框景。一整面的衣柜设计满足业主收纳需求,主卧转进主浴之前,端景墙设有简约的化妆台,符合女业主习惯站着化妆的习惯。进入主浴,纯白色带有手感强烈的面包砖贴于浴室上半段,而下半段则是采用仿天然石材纹路的大片磁砖来营造简约活泼的氛围。延用公共空间的浅色桦木做为浴柜门片,除了有实用的收纳功能之外,温润的材质与冷调的磁砖做结合,不但平衡整体色系,更是为冰冷的浴室注入温润质感。墙面上挂有大片圆形镜面,背后藏有LED的间接光,巧妙的藉由两侧反射材质,形成有趣的日全蚀影像,也达到视觉上的延伸与放大,使业主享有舒适沉淀身心的泡澡好时光。




500 Chinese Words
屋主是一对注重与孩子建立亲密亲子关系的夫妻,希望以现代利落氛围做主要新屋的风格设定,但又不失其温馨。清爽的桦木框起大片落地窗,由客厅过渡到后方小孩房,形成一幅大型窗景,兼具多重的功能,从孩子的身高为考量点,架高的木窗框成为孩子随坐随玩的平台,延伸至游戏房的当中也设有可以展示孩子手作品的层板,木框进入游戏房之后,即是柔软的窗台座位区,鼓励孩子找个舒适的角落作阅读。客厅后方原有客房,豪宅设计将部分墙面拆除,改以透光门片代替。业主在厨房备餐的时候,视觉可以穿透到开放的客厅与游戏房空间。
电视墙面塑造成柔和的弧形,造型轻盈如纸片,光滑的质感柔化了上方带有强烈直线型的空间感。与大门同侧的便是开放式厨房,造形格栅鞋柜巧妙的隔出了业主所向往穿透性强的玄关功能。本住宅拥有良好屋高,厨房上方打斜的天花板实际上是仿欧式小木屋,设计团队巧妙的将吊隐式的冷气机子隐藏于天花上方,只降低局部天花,并从墙面延续木屋的直线型木板至天花,色彩上也利用墙面上半部的灰色带到斜天花,视觉上间接提升了天花的高度。另外为呼应木屋结构为发想,上方有四条木作横梁将开放空间串联起来。整体色系给与视觉上极简,又带有浓列对比的立体效果。


100 Chinese Words
以亲子共读为出发点,架高的木窗框成为孩子随坐随玩的平台,客厅后方游戏室部分墙面以透光门片代替,让视觉穿透。厨房上方打斜的天花板与横梁仿欧式木屋,整体色系给与视觉上极简清爽,又带有浓列对比的现代氛围。
更多豪宅设计请关注聚设汇装修平台: