


空间和形式的关系是建筑艺术和建筑科学的本质---贝聿铭
由于建筑单层平面面积不大,功能间及办公处都尽量考与平面的后端,留给受众最大的公共空间。在达到设计效果的同时满足了A级景区游客中心的所有功能需求。球形楼梯的功能衍射到历史文创品的展陈需求及贯穿二楼,将空间由二维平面转换为三维立面,结合球形层架不同文化书籍、大漆器皿、艺术品等物件,犹如一个大型魔幻球,供访客自由探索艺术与知识的魔力。
有限的平面空间切出一个圆形内核,把人群聚集在空间的中位,破除建筑场域的既定界线,游客中心设计在开放式的平面格局里回归到建筑空间本身的社会本质使用性,并最大程度把户外的自然光影引入室内。二楼露台午后的阳光透过古式花格门映在山脊线的白墙上,如把历史的记忆刻画定格在此时,从前与当下变得模糊,彻底融合与空间的感受。
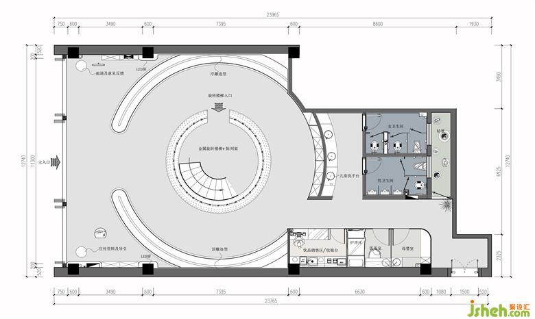
∆一层平面图
∆ 二层平面图


△空间轴测图

