项目地址:中国深圳.百仕达四期
设计面积:70㎡
全案设计:東馬设计
设计时间:2020年11月
拍摄时间:2021年9月
材料运用:木饰面 大理石 硬包 木地板 砖 涂料
本案例是设计面积70㎡,户型是比较方正的两居室,主要给父母及小孩上学居住,常住人员小朋友、外公、外婆。外公外婆都是退休的教师,一直保持着阅读,写字,习惯(学为人师,行为世范),对于空间环境希望沉稳、温馨,干净。老人家有比较多的老旧物品不舍得丢弃,希望在规划的时候考虑进去、实现小空间里收纳多而不乱。对于写字阅读要有独立的桌面,阅读视野要大,不希望面对墙体,平时也会辅导小孩学习。小孩的空间假期会和爸妈住,平时弟弟会来玩可能会和哥哥一起睡,希望床位要够大,小孩房空间有独立的写字桌,除了长辈的辅导时间希望小孩也有自己独立思考学习的一处。
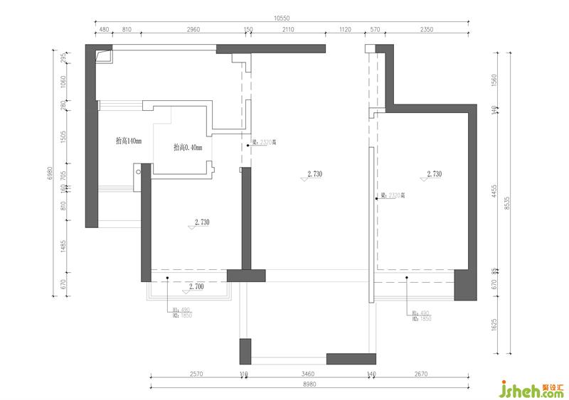
▲原始平面图
①原来卫生间抬高部分太多,布局比较乱
②希望有个洗衣房和收纳间(生活阳台)大阳台考虑休闲后期老人家可以养花
③主卧不好摆放衣柜,收纳不够放,要有大的写字桌,大衣柜,1.8米的床,空间也不要太小气
④小孩房空间太小,希望有大于1.8米的大床,要有衣柜,书桌,书柜,收纳要多
⑤卫生间要干湿分离,洗手盆不要在里面,小孩回家不用进卫生间再洗手
▲设计平面图
①利用进大门的左侧设计了一排鞋柜,可收纳鞋子和挂临时出门大衣,满足老人家的生活习惯。
②大门进来是餐厅,右边是餐边柜和收纳的结合,再进来的是客厅的沙发区域,这两个空间是一整体的长方格局。
③把原来厨房和卫生间的墙体拆除重新规划两个空间,设计多一个洗衣房(收纳间)一排收纳柜和洗衣机的结合,让不怎么常用的物品规划到这个空间来。
④厨房做了一排L形的橱柜,进门拐角处放置电饭煲或煮水区,然后是冰箱、炉灶、洗菜盆的连贯关系。
⑤卫生间把洗手盆独立出来,然后依次进去是马桶区,淋浴区,分别背后设计了壁龛和收纳的结合,让沐浴生活用品有更好的收纳位置。
⑥主卧把原来门洞位置小改动,背后布置一个长条衣柜,老人说飘窗台没有多大的用处,也不会在上面休闲,能不能打掉?综合考虑于是我们干脆把飘窗台改造成写字桌,把台面加宽,原墙面基础把台面再出来≥200mm来放置伸腿位。
⑦从过道进去是小孩房,进来的右边是书桌,在原来的基础上把床的位置延伸到窗台做了榻榻米的形式,床头对面是衣柜,空间利用到最大化。
客厅的空间和餐厅是个长方体的空间,没有繁琐的装饰,用现代表现的方式,地面是灰色地砖通铺效果,天花是简约的造型无主灯设计,进门左边是一排木饰面鞋柜,设计上我们设计无拉手柜门,颜色是木色细纹偏暖,背景墙是选用自然的大理石,结合暗门、柜子材料交替碰撞的设计元素,体现出整体干净、秩序层次的空间。
客厅的空间和餐厅是个长方体的空间,没有繁琐的装饰,用现代表现的方式,地面是灰色地砖通铺效果,天花是简约的造型无主灯设计,进门左边是一排木饰面鞋柜,设计上我们设计无拉手柜门,颜色是木色细纹偏暖,背景墙是选用自然的大理石,结合暗门、柜子材料交替碰撞的设计元素,体现出整体干净、秩序层次的空间。

沙发背景是是暖色的硬包,采用大小块的阵列排版,给墙面增加线条延伸感,干净简洁的造型,线条设计和竖条的长虹玻璃吊轨门结合,更是一种减法的表现方式。灰色的地面通铺结合暖色的墙面,在小家具色彩的影响下也让整个空间具有温馨感。

木色开放格和白色柜门的配搭,保持了整体的现代风格,餐桌配搭石材一体和线条金属的结构。舒适的空间和家具的配搭,简洁流利


长虹玻璃透过餐厅,木饰面和空间在橘色的餐椅配搭下让空间更有近深感。
