项目地址:中国深圳.传麒东湖名苑
设计面积:53㎡
全案设计:东马设计
灯光设计:叁墨照明
设计时间:2020年07月
拍摄时间:2021年04月
材料运用:抛光砖 水磨石砖 岩板 涂料
说在前面:
房子建筑面积70㎡,实测套内只有53㎡的一居室,业主是一对90后夫妻,户型面积的限制和设计需求形成了极大的反差,给我们设计师带来了极大的挑战性。目前是两口子居住,在未来的5年时间里会增加家庭成员,所以要解决一家三口居住和亲戚朋友偶尔来居住的需求,又不想占用客厅的空间诉求下,我们首先要大胆打破空间的界限和处理好功能区域的划分,还有采光通风等问题。因为业主是一个专业的甜品师,她需要一个大厨房和餐厅;而且要有一个可以给小孩子到处跑的大客厅。为满足她对家的期待,下面让我们一起来看看这个“小家”变“大家”的锐变吧!
▲原始平面图
①房子很小,但是东西很多,希望家里收纳空间很大,但又希望看上去空无一物,减少杂乱视觉。
②深圳家居设计需要两居室,满足未来的居住需求。
③业主是甜品师,电器多,但厨房又小;需要有足够的空间来容纳摆放,还需要与客餐厅有互动性的功能。
④原户型卫生间没有做干湿分离,业主希望做到干湿分区。
⑤还必须有黑板墙,给我们记事、或者以后小朋友画画。
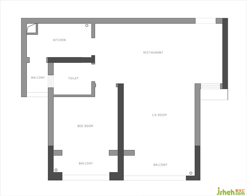
▲设计平面图
①利用进门的左侧设计了一排鞋柜预留3/5是坐的位置。
②把厨房的墙体打掉,扩大面积设计成开放式厨房,多功能的餐吧台设计了洄游的动线增加厨房、客厅的互动性。
③齐平洗手台凸出来的墙体做一排电视矮柜延伸过去的是书柜。
④利用原来的大阳台设计成与客厅一体的榻榻米休闲空间,纱帘一拉上也是一个独立的卧室。
⑤洗手台从卫生间分离出去,原先的卫生间变成淋浴房和马桶间,从淋浴间出去又是一个生活小阳台。
⑥打掉主卧的阳台,扩大室内的面积,整个卧室是设计了榻榻米的,一长排的衣柜储物功能和办公的需求都完美地满足。
▲平面动线图
深圳家居设计进来的动线围绕着餐吧台来洄游,宽阔的视野,互相关联的一个空间。

整屋都是以明亮的白灰色墙为主,明亮素净,在视觉上可以扩大空间,而且给人一种自由放松思绪。进门望去就有个88寸的大屏幕,没错,小户型也值得拥有大屏幕,在家就能坐拥影院。

这个小区同户型的很多都把它隔成两房,其实我们设计的也是个移动的两房。深圳家居设计客厅榻榻米区域是收纳,是书吧休闲区,同时也是房间。窗帘隐藏在天花槽里面,拉下来就是独立空间。当时考虑到一年亲戚朋友也就最多来个一两次,没必要为这低频的事情专门隔个房间出来,最重要房子会因为这样显得小!小户型也值得拥有。
这是原来阳台的地方,现在打掉阳台墙体封窗户,变成一个室内的空间。设计成榻榻米休闲娱乐区,是闲聊饮茶的地方,书吧,隐藏卧室,既是亲子互动活动的区域;整个空间采用了榻榻米,外面是抽屉的做法,用来收藏小孩子的玩具、小物件;里面则是掀开的做法,收纳比较大体的物体等;榻榻米一侧设计了不同的书柜造型,白色的背板点缀使得它在木色中跳跃区分。

大门背后有一整面墙的收纳空间,一半是玄关柜,一半是洞洞板区域。这面墙的理念灵感来源于日本收纳学。玄关柜不仅是放鞋子雨伞地方,我们规划还会放进去一些日用品备用品、未来小朋友的推车之类。另外日常的鞋子就做了开放格,区分外出鞋和家居鞋。
