▼舱体操作台制作过程The process of making cabin worktop

▼过程分析图Process Diagram
▼原始建筑墙体组成的空间十分消极 The space made up of the original walls is very negative
▼移除墙体后,环绕柱子设置操作台,与主入口和大堂均形成良好的关系 After removing the walls, the worktop has been set around the beam, forming a good relationship between both the main entrance and the lobby
▼设置球形舱体,以便于设置储物空间和隐藏设备 Setting up spherical cabin to allow for storage space and concealment of equipment
▼施工完成之后,由于业主希望顾客可以进入舱体内部进行体验,所以另外设置了一个操作台After completing the construction, an additional worktop has been set up since the client wanted to provide a cabin-experience for customers
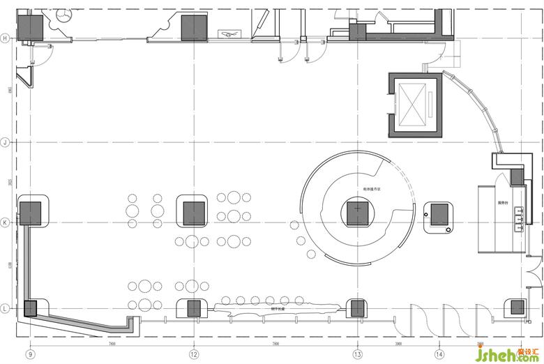
▼平面图Floor plan
更多咖啡制造局设计请关注聚设汇装修平台: