项目地址:深圳·福田区
项目面积:123㎡
设计风格:现代风
设计团队:尺子室内设计
软装设计:由房到家软装
落地管控:尺子&设美家团队
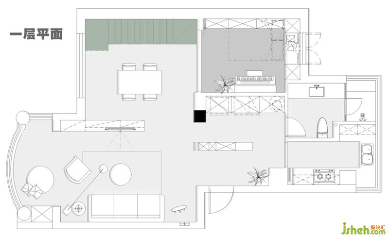
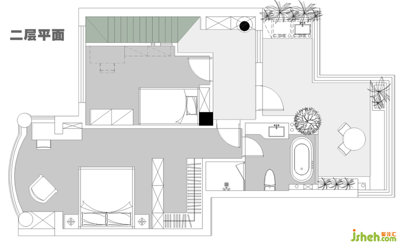
房子是顶楼复式设计,123㎡的二手房,原户型各个空间都偏小,屋主希望居住空间能更宽阔些。房子承重墙较少,因此硬装的可改动性比较大:

一层 公共区 | PUBLIC AREA
改造后一层作为整个家的活动区,是一个开放通透的大空间。
顶楼复式设计以一面多功能收纳柜,将玄关区域边界强化;围绕整个一层空间打造出中心式的洄游动线,形成一个「无走动尽头的家」,以此完成空间的多种复合使用,增强家人之间的联系与互动。

客厅处的阳台纳入室内,增加使用面积的同时也让光线最大化进入到空间内。简约的大背景下,通过不同材质、纹理来丰盈整个空间。
白色的波浪板向外延伸,搭配灰镜装饰及镜面柜门,构成了层次分明的沙发背景,同时弱化了原阳台区域的承重柱;电视柜一侧的墙面则是做了弧形处理,以追求更好的视觉包容感。


形式追随功能,椭圆的餐桌台面与地面瓷砖纹理相呼应,开放式的餐边柜以及白色造型灯具,丰富着室内空间。

