项目地址:深圳壹城中心
项目面积:80㎡|四室两厅
设计风格:复古风
设计团队:尺子室内设计
软装设计:由房到家软装
落地管控:尺子&设美家团队
业主C小姐和L先生,紧跟时尚潮流的90后,希望生活的空间温暖又不失调性,独特且有魅力。室内设计师用百搭的灰色调打底,橄榄绿、海军蓝、烟灰粉一笔一划地描绘着理想中家的模样。
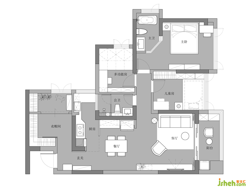
户型改造
▲ 原始结构图
▲ 平面功能布局图
①全屋四间卧室,在满足基本居住需求的基础上,我们室内设计师舍弃了入户左侧的卧室,将其改为衣帽间,方便集中收纳包包、衣物
②原厨房区域狭小,采光差,我们将厨房旁的生活阳台阔入室内,增加厨房使用面积;同时砸掉原本的墙体用长虹玻璃推拉门替代,做半开放式设计,增强整个公共空间的通透感
③主卫更改原本的门洞位置,避免开门正对卫生间,并用通透的玻璃门做斜角处理,大大增加采光面
01
橄榄绿的欢迎式
不似嫩绿的娇俏,墨绿的深沉,内敛的橄榄绿优雅独树一帜,看似低调自然,带着点点做旧味道的颜色,与充满活力的橙黄碰撞,也能擦除自由热烈的火花,透露着复古优雅的浪漫感。
玄关处的暖色灯光为家居配饰打造出一个独特的舞台,松绿花瓶与柠檬果静立在藤编鞋柜上,与不同色彩的挂画组合,演绎一场万种风情的戏曲。


02
暖暖生活气
黑金配色的餐桌椅搭配着同色系后现代极简个性吊灯,从橄榄绿玄关开启的复古之旅,在餐厅空间得以延续变化。
黑框玻璃推拉门不仅颜值在线,也能充当着实用的空间隔断,清晰界定出餐厨两个功能区;玻璃材质特有的通透感,却也为两个空间建立了亲密的联系。
暖灰色餐边柜上,薄荷绿电烤箱把空间从深色复古调拉入清新自然的现代风世界,隔板上的瓶瓶罐罐,带着真实温暖的烟火气。
改造后的厨房比原来更加开阔,还多了一小排收藏柜,各式各样的杯子,寄托着主人对生活的热爱与追求。