欢迎光临聚设汇,装修找设计就上聚设汇!
   咨询电话:15602987227
登录    注册
聚设汇
首页 > 家装 > 素·隐观

素·隐观

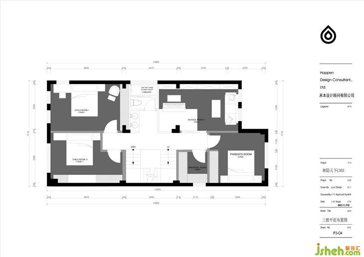
卧室与开放式衣帽间相结合,不仅通透了整个空间,且进一步提升采光与通风。深咖色的地板与亚光白的柜子形体简约且不失质感,带来的不只是视觉上的素雅轻奢,更有着触觉上的细腻柔和、亲切、与自然舒适。整体衣柜外加中岛储物格兼具实用性与美观性,设计师在尺度比例、材质工艺的选用上都进行了细致充分的考量,有着干练、和恰如其分的极致感。

禾本设计顾问联合始创人 、设计总监

设计收费:面议 元/平             

擅长类型: 家装,豪宅,别墅

在线咨询

我的作品更多>>

扫描二维码关注我们的微信

深圳市聚设汇文化传媒有限公司
主编热线:15602987227
总部:深圳市罗湖区梨园路128号宝能汽车大楼416单元
佛山、东莞、成都、重庆、福州、厦门、南昌、武汉、
杭州、苏州、温州、郑州、长春、沈阳、贵阳、柳州、
哈尔滨、九江等城市设立办事处
© 2017-2021 Jsheh.com 版权所有 粤ICP备17079093号
展开
回到顶部