
“以壁为纸,以影为绘”,艺术品倒映出清晰的轮廓和剪影,于无水处生“水”。别墅装修设计待繁星取代落日,皓月坠入夜空,梦境入光影沉沦,耳朵被自然唤醒,抬眼便是满目星河以及静谧的私享,和光而耀,思之即得。
"Using the wall as paper and the shadow as painting", the artwork reflects clear Outlines and silhouettes, generating "water" where there is no water. Wait for the stars to replace the setting sun, bright moon into the night sky, the dream into the destruction of light and shadow, the ear was awakened by nature, lifted eyes are everywhere stars and rivers and quiet private enjoyment, light and shine, think of it.
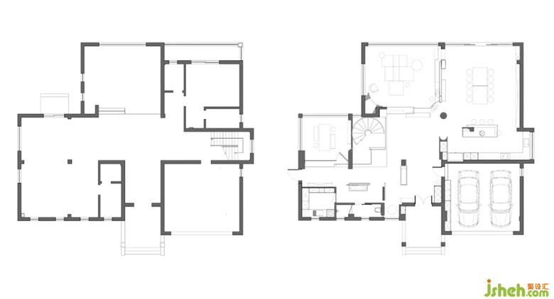
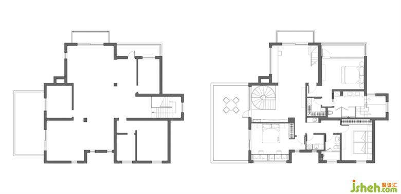
平面布置图 Floor plan


更多别墅装修设计请关注: