欢迎光临聚设汇,装修找设计就上聚设汇!
   咨询电话:15602987227
登录    注册
聚设汇
首页 > 家装 > 落于首都排屋的现代法式设计,谱一曲远道而来的浪漫

落于首都排屋的现代法式设计,谱一曲远道而来的浪漫

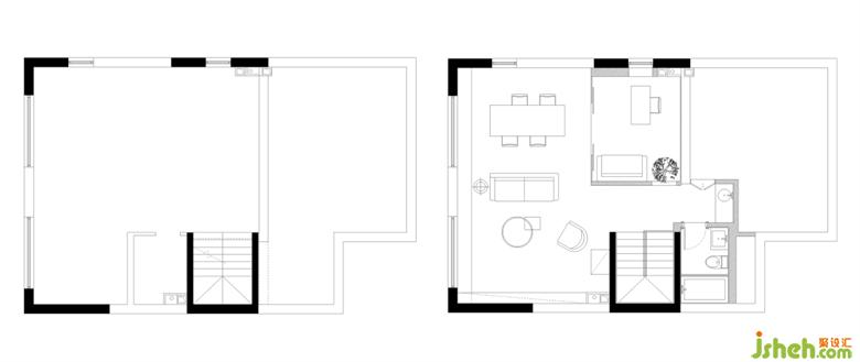
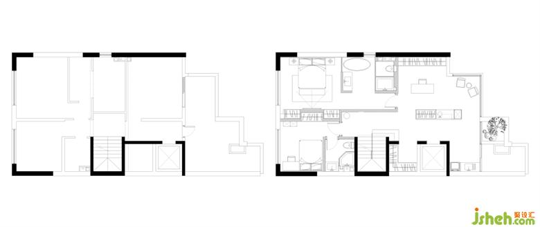
平面布置图 Floor plan

更多现代法式设计请关注:

辰佑设计

设计收费:面议 元/平             

擅长类型: 别墅,排屋,高档公寓及商用空间

在线咨询

扫描二维码关注我们的微信

深圳市聚设汇文化传媒有限公司
主编热线:15602987227
总部:深圳市罗湖区梨园路128号宝能汽车大楼416单元
佛山、东莞、成都、重庆、福州、厦门、南昌、武汉、
杭州、苏州、温州、郑州、长春、沈阳、贵阳、柳州、
哈尔滨、九江等城市设立办事处
© 2017-2021 Jsheh.com 版权所有 粤ICP备17079093号
展开
回到顶部