欢迎光临聚设汇,装修找设计就上聚设汇!
   咨询电话:15602987227
登录    注册
聚设汇
首页 > 家装 > 光影侘寂别墅装饰,“墅”造持续生长的艺术容器

光影侘寂别墅装饰,“墅”造持续生长的艺术容器

山水造寸境,将四时风物收藏,方寸理想世界顷刻即成。别墅装饰临榭听风意,烹茶听雨落, 拥无尽之意,一境禅趣,浑然天成。而窗外生机绵延,与室内气韵缱绻相融,共得一方自在天地。

寻得一处现代境,幽趣婉转,艺趣盛放间窥见有趣的型格,别墅装饰一室的清灵简雅缓缓道出,于小境里自得其乐。

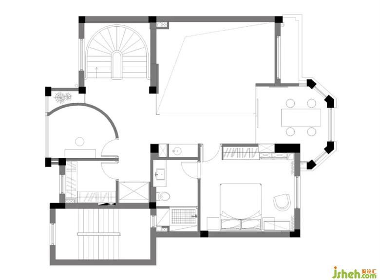
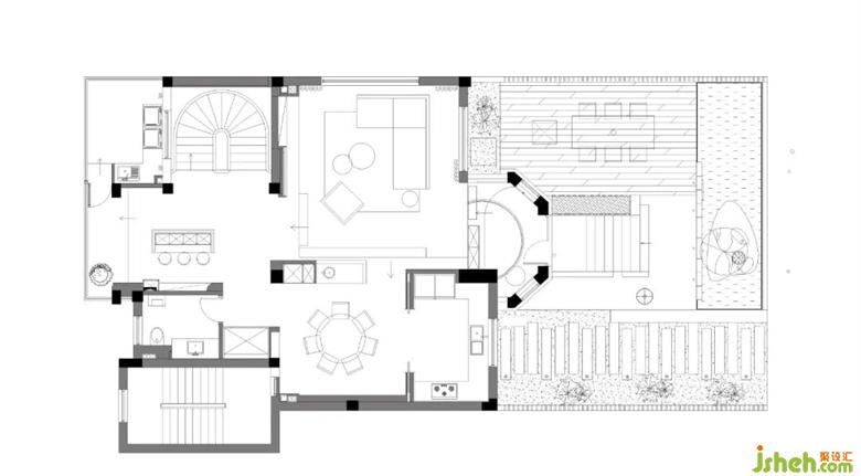
平面布置图 Floor plan

更多别墅装饰请关注:

辰佑设计

设计收费:面议 元/平             

擅长类型: 别墅,排屋,高档公寓及商用空间

在线咨询

扫描二维码关注我们的微信

深圳市聚设汇文化传媒有限公司
主编热线:15602987227
总部:深圳市罗湖区梨园路128号宝能汽车大楼416单元
佛山、东莞、成都、重庆、福州、厦门、南昌、武汉、
杭州、苏州、温州、郑州、长春、沈阳、贵阳、柳州、
哈尔滨、九江等城市设立办事处
© 2017-2021 Jsheh.com 版权所有 粤ICP备17079093号
展开
回到顶部