欢迎光临聚设汇,装修找设计就上聚设汇!
   咨询电话:15602987227
登录    注册
聚设汇
首页 > 家装 > 意2

意2

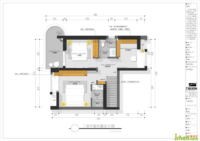
一楼次卧隐形门设计,提高客厅空间整体性,优化视觉效果。

抬高休闲区地面,用大理石门槛与原木色门套将空间区隔开来。

简单的语言阐述东方意境,希望能给现代人一种静谧的生活空间,身处繁华都市太久,便渴望一丝静谧的身心归处。阳光、茶香、听风、听雨,你应该享有这种姿态,生活的诗意而满足。

窗户两侧做成餐边柜形态,节省空间,并利用窗户光线引入用餐区域。

阳光透过窗户洒入室内,暖意十足。窗户下半部做成飘窗柜,增加收纳储藏空间。

福州万欣装饰设计工程有限公司设计总监

设计收费:300 元/平             

擅长类型: 住宅

在线咨询

扫描二维码关注我们的微信

深圳市聚设汇文化传媒有限公司
主编热线:15602987227
总部:深圳市罗湖区梨园路128号宝能汽车大楼416单元
佛山、东莞、成都、重庆、福州、厦门、南昌、武汉、
杭州、苏州、温州、郑州、长春、沈阳、贵阳、柳州、
哈尔滨、九江等城市设立办事处
© 2017-2021 Jsheh.com 版权所有 粤ICP备17079093号
展开
回到顶部