地下室解决了功能性、自然性、采光等问题,为了居家的体验更加舒适,别墅装修设计师在地下室墙体内置入三恒系统(恒温、恒湿、恒氧),日常在屋内不需要开窗,三恒系统便可确保空气的流通。

负二楼
空间在“和静”的气息下,除了呈现一种感官上的舒适外,也为业主完成了一个简练静谧的办公或活动场所,在极度宁静的氛围里冥想,更加利于发展好的工作创意。
05统一且克制的空间美感
三楼主卧室
业主与设计师一致认为,寝居不应太拘束,随意适性的休憩空间才能给予人真正的放松感。别墅装修设计卧室以干练的线条实现分割,家具亦在素雅的搭配中展现出业主生活的简单节奏,从内到外散发着一种清新平静。

衣帽&盥洗区域
干练、明亮、留白,方寸之间尽情展现着女主人对衣帽区域的考究姿态。盥洗区域隐形储藏柜,嵌入墙面,使墙与柜完美融为一体,既提供展示与收纳,又将空间统一起来,克制而整洁。
影音&健身区域
影音和健身区域设计的核心在于通过线条和白色形成大面积视觉延伸,让视界突破尺寸的界线,构成更开敞的空间布局。
别墅装修设计师聚焦于业主的生活习惯,打造了一所忠于业主精神世界的房子,让居住者回到一个简约的家中,扫除心中的烦恼,让心灵得以释放。
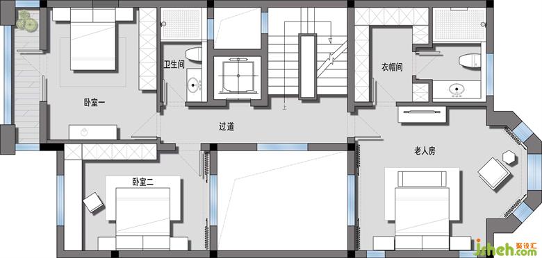
/平面布置图/
负二楼
负一楼
一楼
二楼
三楼
更多别墅装修设计请关注聚设汇装修平台: