项目名称松山湖
楼盘名称观园豪宅设计
设计公司:深圳市居众装饰设计有限公司东莞分公司
主持设计师:陈宏
项目所在城市东莞
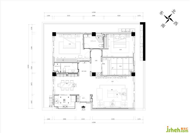
项目面积160m²
项目总造价40W
豪宅设计在探寻将住宅回归至「本真」之美,追寻实用简约,让自然发声而创作的作品。在一片淡雅的灰白基底空间里,设计师以最低限度的装饰线条,搭配素净色彩与质感肌理,为空间写下“人与自然”的美学概念。
对于平时工作忙碌的业主,一个“简约而不简单的客厅”往往会比“造型繁杂的背景”更让人舒心。
客厅为整个家庭活动的中心,豪宅设计师简约的灰白底色加上极简的几何线条布置素色的家具,各个家具和线条点阵式散布在空间里,既相互联系又相互独立,既方便使用又和谐美观。



材质颜色均采用了精简的灰白色调,使得空间体量成为设计的主导。低饱和度的柔和色调,不张扬,不媚俗,它既不像高饱和度的彩色系一样活泼奔放,也不像黑白那样简洁,它呈现的是一种温暖的,舒适的,平静优雅的空间,置身于其中可以让人身心放松。
柜体的木色与机极窄黑色线条则丰富了空间的氛围。豪宅设计简单而不失质感的无主灯光设计,勒出光影绰约,尝试浪漫的另一种可能。以生活的需求为导向,打造简约理性的生活美学。空间和光环境作为本住宅的特色,设计师在全屋进行了无主灯设计。

拉伸了空间高度,放大了空间的视觉感受,让空间更加明朗敞亮,让艺术美学更加突出。极简主义的理念同样延伸至卧室,简洁干练的线条,中性灰色是调色盘中永不过时的经典,温暖又舒适,优雅又高级结合科技感灯带,无主灯设计实用又美观。
灯光布置汇总,高亮与强烈的明暗对比度很容易使人感觉到疲劳,而太过于均匀的照明会让空间缺乏趣味。在布置家居照明时,注意保持了合理的明暗对比度。同时点睛之笔在于设计师挑选的盆栽小景,些许的绿色给空间增添活力,让空间生机盎然。



更多豪宅设计请关注聚设汇装修平台: