黄铜点缀威尼斯水滴造型玻璃灯饰
多了一份值得细细品味的艺术气息
精美的西餐具及花艺陈设
让人不自觉联想到生活原本的模样
内心的喜悦和欢愉油然而生
Brass ornaments Venice water-shaped glass lamp
More than a worthy taste of art
Fine western tableware and floral furnishings
It reminds people of life as it is
Joy and happiness arise within

充满东方艺术品位的家具
述说精致的生活和高雅的艺术审美
颇具东方水墨韵味的书房
讲述内心的风雅和从容
Furniture is full of oriental artistic taste
Narrating delicate life and elegant art aesthetic
Oriental ink charm study
Telling the inner elegance and ease

居住艺术最完美的演绎是
摆脱设计和风格本身的束缚
感受浸透于空间细节中流露出的“优雅”品位
The most perfect interpretation of living art is
Getting rid of design and style
Feeling ‘elegant’taste that permeated from the details of the space

生活收藏诗和远方
一个糅合东方诗意与西方文化色彩的家
一半浪漫 一半优雅
为人们创造诗意生活一直驱动我们前行!装修设计
Life collects poetry and distance
A home blending of eastern poetry and western culture
Half romantic and half elegant
Creating a poetic life for people has been driving us forward!
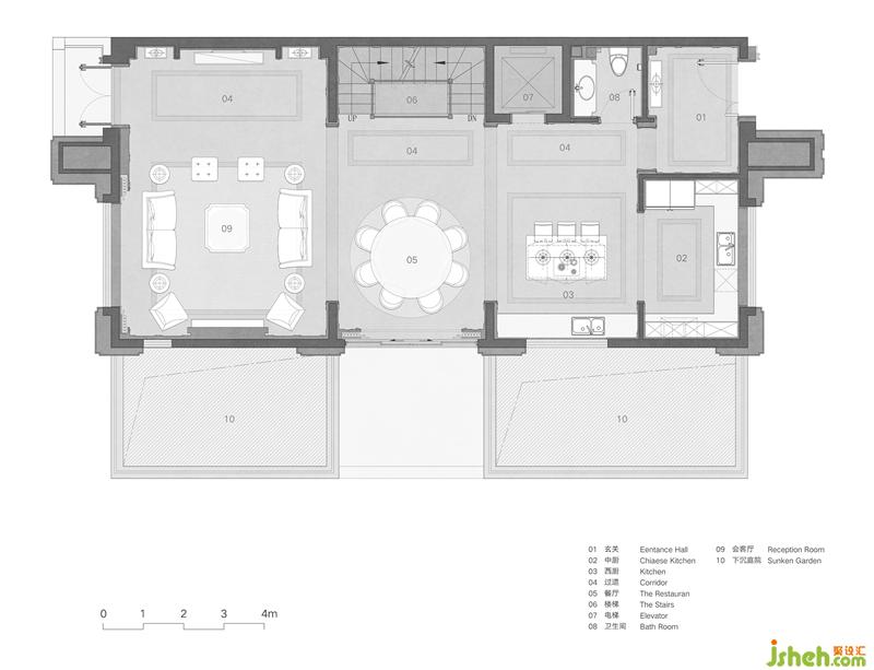
▽ 平面图
