欢迎光临聚设汇,装修找设计就上聚设汇!
   咨询电话:15602987227
登录    注册
聚设汇
首页 > 家装 > 徜徉简约之家

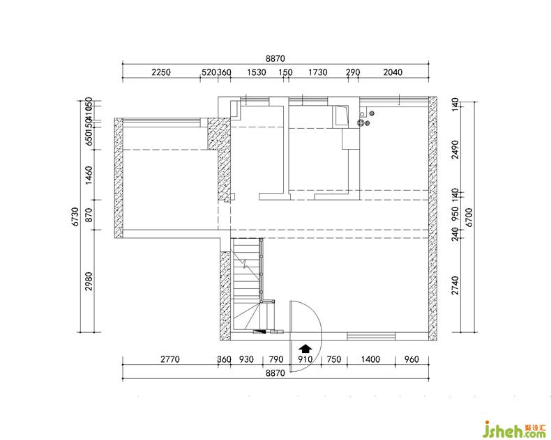
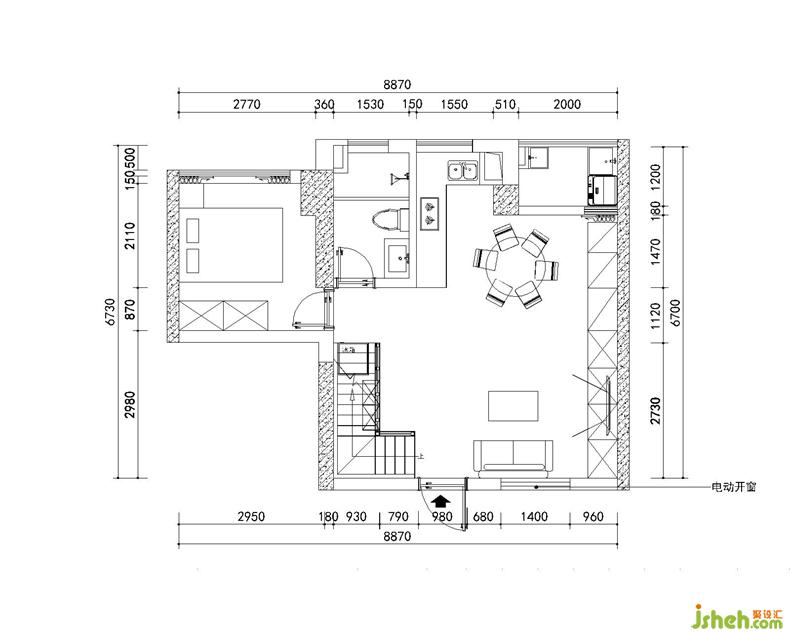
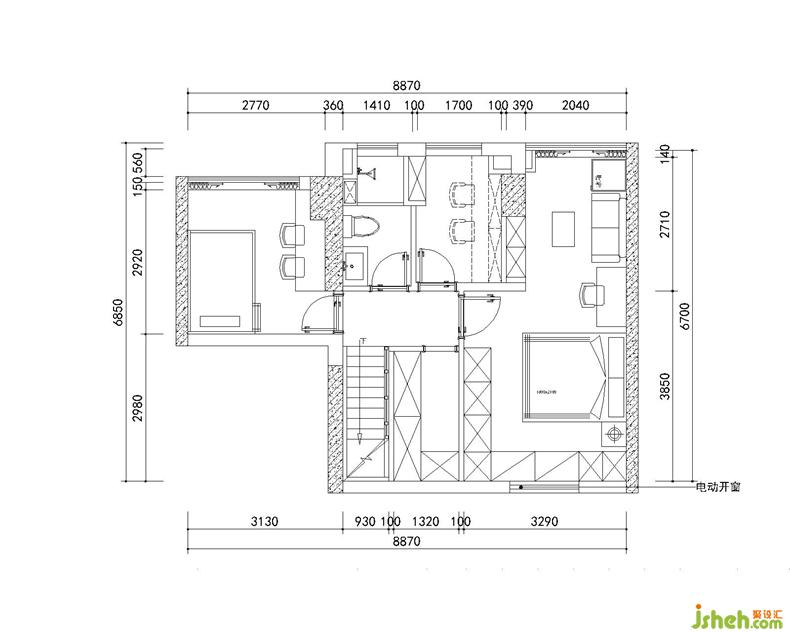
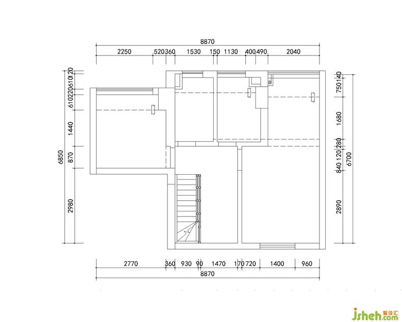
徜徉简约之家

长辈房 Parents Room

长辈房陈设简洁,素色床品,纯粹木质元素的家具,还有装饰画与花器,融合在空间里,宁静畅然,点点滴滴保留生活的原汁原味。

卫生间 Bathroom

卫浴空间充满了浓浓的艺术气息,不同于中规中矩的瓷砖铺贴,一整面趣味性十足的墙面,营造出活跃的小空间氛围。室内设计师

标点设计设计总监

设计收费:400 元/平             

擅长类型: 私宅,别墅

在线咨询

扫描二维码关注我们的微信

深圳市聚设汇文化传媒有限公司
主编热线:15602987227
总部:深圳市罗湖区梨园路128号宝能汽车大楼416单元
佛山、东莞、成都、重庆、福州、厦门、南昌、武汉、
杭州、苏州、温州、郑州、长春、沈阳、贵阳、柳州、
哈尔滨、九江等城市设立办事处
© 2017-2021 Jsheh.com 版权所有 粤ICP备17079093号
展开
回到顶部