
光线配合家具,渲染沉稳、简约的氛围。而橘色系的单椅和抱枕巧妙地打破了黑白灰的单一,让格调更加鲜明,层次感更为丰富、分明。闲时泡上一杯咖啡,浓郁醇厚的香气充盈在空气中,靠在椅子上读一两章小说,享受休闲午后时光。

由于生活空间的规划,原本的书房区域作出了让步,但是业主说,生活不能缺少阅读。于是室内设计师特别设计了整面墙的书架,加上角落的书桌功能,使得客厅成为一个集会客、娱乐、阅读、工作的多功能区,实用又可靠。

稳重内敛的气质十分契合屋主夫妻二人的品位,橙色系的床头硬包专门做成一半的设计并配以同色系的千鸟格纹靠枕,有一整面的衣柜来满足日常储物需求。室内设计师沿用主色调的黑白灰配以橙色系点亮视线,呈现沉稳安静却又都市化的卧室空间。一捧淡雅的花束,陪伴你一整晚的好睡眠。

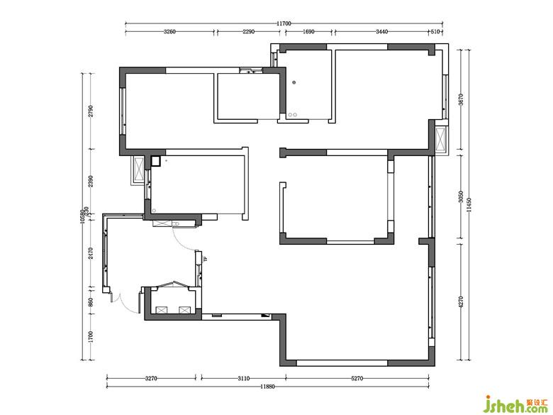
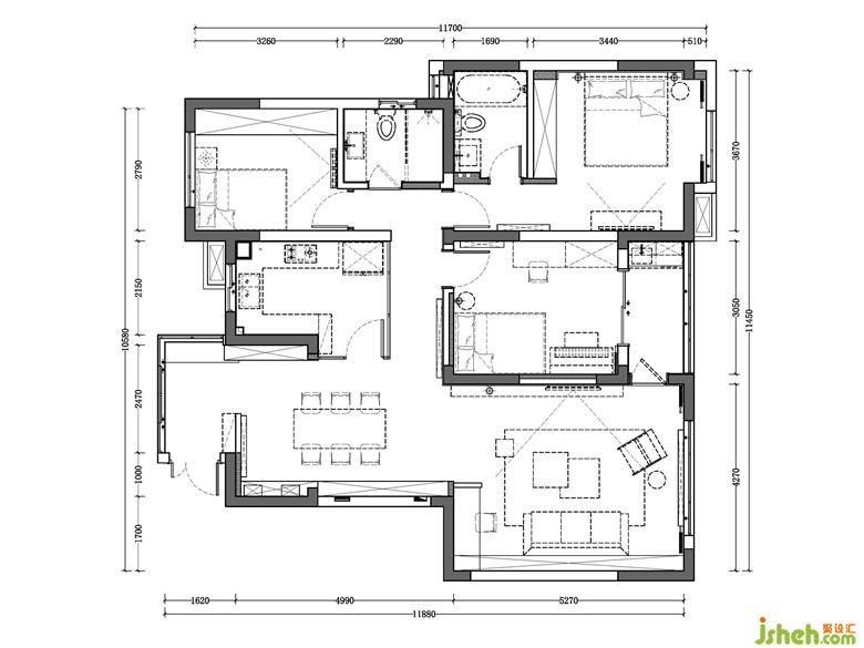
本案户型方正,结构上稍作调整,设计师把入户门厅与餐厅打通,形成一个通透的空间,并设置鞋柜与餐边柜功能区,把原来的电井及消防栓用木饰面巧妙地隐藏起来。原过道狭长、采光较差,通过拆除厨房墙体,并设置钢化玻璃隔墙,使得厨房及过道采光得到改善。原客房门洞内移,改变客卫门的位置,解决卫生间门正对过道和餐厅的风水考虑。整个设计动静分离,动线流畅,通过局部改造,使各个空间功能性更加完善,使用更合理。