
书房
儿童房以探寻月球为主题下产生,背景采用天空色,样板间设计配以灰色月球图案,提升空间格调,使孩子在空间中轻松自在的发掘兴趣,尽情展现率真自我。
The children's room is created under the theme of exploring the moon. The background adopts sky color and gray moon pattern to enhance the space style, so that children can easily explore their interests in space and fully display their frank self.

卫生间

楼梯间

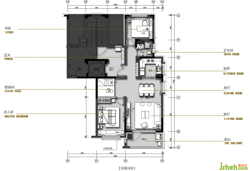
1F平面
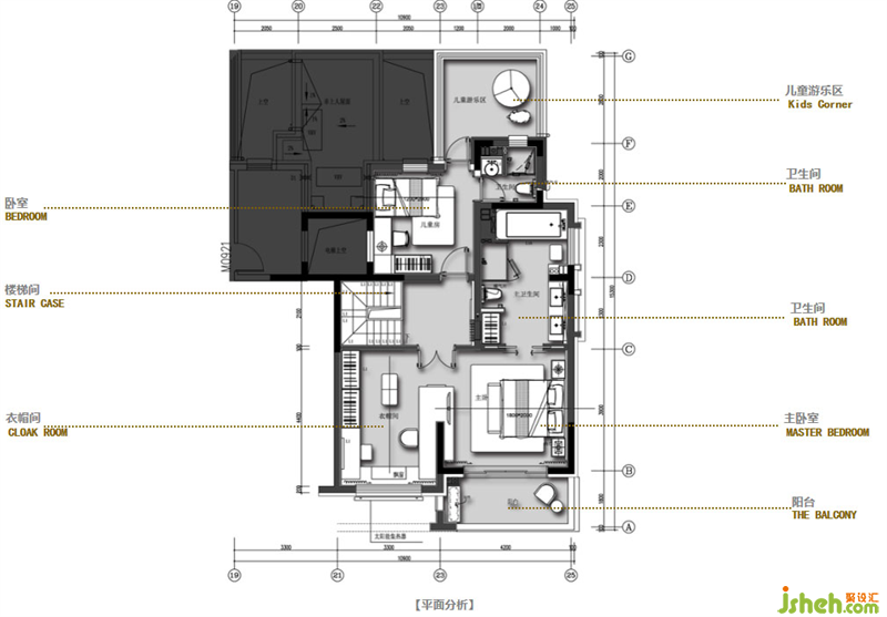
2F平面
更多样板间设计请关注