项目丨Location:龙湖紫云台
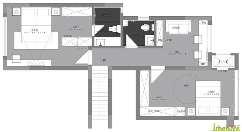
建筑面积丨Square meters:165㎡
户型丨House type:跃层
风格丨style:现代
硬装设计丨Structure:DE设计事务所-吴方臣
软装设计丨Decoration:D.ART软装服务机构-曹瑞雪
施工团队丨Project:DE工程中心
摄影丨Photography:隙间空间摄影
业主需求
1)足够大的收纳空间,同时分类储物;
2)客厅及休闲区域更开阔,空间更通透;
3)楼道不压抑;
4)二楼需要一个小起居室及书房功能,可以偶尔打个游戏。
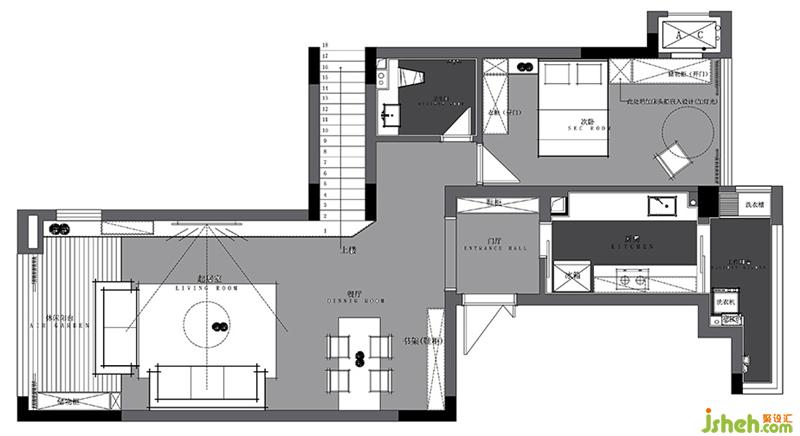
餐-厅
餐厅墙面饰面和顶面相交呼应,让这种延展的感觉直至客厅。餐厅顶面和客厅顶面使用不同的材质,同时间隔处使用漫反射光源,层次感更强。

厨房为封闭式厨房,墙面浅色系砖打底,让橱柜材质质感更加凸显。一体式水槽和台面岩板完美贴合,拒绝卫生死角。
客-厅

把阳台和整个客厅融为一体,整个空间的视觉延伸感更强。同时客厅阳台内地台的加入又赋予阳台更多的可能性。


客厅斜顶的造型弱化了和客厅与阳台之间梁的高度,同时漫反射光源的加入让整个客厅顶面错落有致。